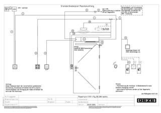
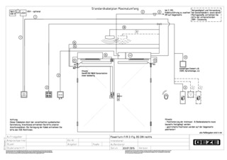
Drehtürantriebssystem Powerturn 1-flg. * Elektromechanisches Drehtürantriebssystem für einflügelige Türen bis 600 kg
- Smart swing-Funktion für leichtes manuelles Öffnen der Tür
- Stufenlos einstellbare Schließkraft von EN 4-7
- Öffnungs- und Schließgeschwindigkeit kann individuell angepasst werden
- Mechanischer Endschlag im stromlosen Betrieb und elektrischer Endschlag der Automatikeinheit im Regelbetrieb, der die Tür kurz vor der Geschlossenlage beschleunigt
- Low-Energy-Funktion öffnet und schließt die Tür mit reduzierter Fahrgeschwindigkeit und erfüllt damit höchste Sicherheitsanforderungen
- Servo-Funktion zur motorischen Unterstützung bei manueller Öffnung der Tür
- Windfang-Funktion regelt das Öffnen und Schließen von zwei hintereinander liegenden Türen (Schleuse)
- Hinderniserkennung bemerkt ein Hindernis durch Berührung und stoppt den Öffnungs- oder Schließvorgang
- Automatische Reversierung erkennt ein Hindernis und kehrt zurück in die Öffnungsposition
- Push & Go-Funktion löst nach leichtem manuellen Druck auf das Türblatt die Antriebsautomatik aus
- Antrieb kann mit Rollenschiene oder Gestänge verwendet werden
- Optionale Funkempfangsplatine für kabellose Ansteuerung per Funksender
- Auslösung der Feststellung über manuelles Zuziehen des Türflügels möglich
- Reset der Feststellanlage über manuelles Öffnen des Türflügels auf 80° Öffnungswinkel oder Betriebsartenwechsel
Anwendungsbereiche
- Einflügelige rechte und linke Anschlagtüren
- Anschlagtüren bis 1600 mm Flügelbreite oder 600 kg Gewicht
- Minimale Breite des Türflügels 800 mm
- Innen- und Außentüren mit hoher Begehfrequenz
- Türblattmontage und Kopfmontage
Konfigurationsvarianten
- Powerturn
- Powerturn F
- Powerturn F/R
Einbausituationen in Referenzobjekten und Videos
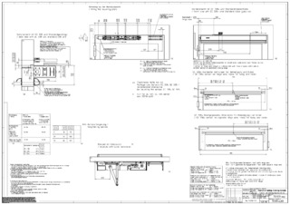
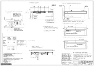
Technische Daten zum Produkt
| Drehtürantriebssystem Powerturn 1-flg. | |
| Höhe | 70 mm |
| Tiefe | 130 mm |
| Länge min. | 720 mm |
| Flügelgewicht (max.) 1-flügelig | 600 kg |
| Bandmaß (min.-max.) 2-flügelig Gestänge | 1600 mm - 3200 mm |
| Bandmaß (min.-max.) 2-flügelig Rollenschiene | 1600 mm - 3200 mm |
| Flügelbreite (min.-max.) | 800 mm - 1600 mm |
| Leibungstiefe (max.) | 560 mm |
| Antriebstyp | Elektromechanisch |
| Öffnungswinkel (max.) | 136 ° |
| Federvorspannung | EN 4 - EN 7 |
| DIN links | Ja |
| DIN rechts | Ja |
| Kopfmontage Bandgegenseite mit Gestänge | Ja |
| Kopfmontage Bandgegenseite mit Rollenschiene | Ja |
| Kopfmontage Bandseite mit Rollenschiene | Ja |
| Türblattmontage Bandgegenseite mit Rollenschiene | Ja |
| Türblattmontage Bandseite mit Rollenschiene | Ja |
| Türblattmontage Bandseite mit Gestänge | Ja |
| Mechanischer Endschlag | Ja |
| Elektrischer Endschlag | Ja |
| Netztrennung | Hauptschalter im Antrieb |
| Ansteuerverzögerung (max.) | 10 s |
| Betriebsspannung | 230 V |
| Nennleistung | 200 W |
| Stromversorgung für externe Verbraucher (24 V DC) | 1200 mA |
| Betriebstemperatur | -15 - 50 °C |
| Schutzart | IP30 |
| Betriebsart | Automatik, Daueroffen, Ladenschluss, Nacht, Aus |
| Auslösen und Reset der Festellanlage | per Bewegen des Türflügels, per Taster |
| Funktionsart | Vollautomat |
| Funktion Automatik | Ja |
| Funktion Low-Energy | Ja |
| Funktion Smart swing | Ja |
| Funktion Servo | Ja |
| Funktion Tasten | Ja |
| Hinderniserkennung | Ja |
| Automatische Reversierung | Ja |
| Push & Go | einstellbar |
| Bedienung | Programmschalter DPS, Programmschalter MPS, Programmschalter im Antrieb integriert |
| Parametrierung | GEZEconnects (PC + Bluetooth), Serviceterminal ST 220, Programmschalter DPS |
| Normkonformität | DIN EN 16005 |
| Rauchschalter integriert | Ja |
Downloads
Varianten & Zubehör
* Hinweis zu den gezeigten Produkten
Die aufgeführten Produkte können in der Form, Art, Eigenschaft und Funktion (Design, Maße, Verfügbarkeit, Zulassungen, Normen usw.) länderspezifisch abweichen. Kontaktieren Sie hierzu bitte Ihren GEZE Ansprechpartner oder senden Sie uns gerne eine E-Mail .