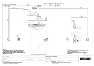
Drehtürantriebssystem Slimdrive EMD-F 1-flg. * Elektromechanisches Drehtürsystem für einflügelige Feuer- und Rauchschutztüren
- Stufenlos einstellbare Schließkraft von EN 4-6
- Öffnungs- und Schließgeschwindigkeit kann individuell angepasst werden
- Mechanischer Endschlag im stromlosen Betrieb und elektrischer Endschlag im Regelbetrieb, der die Tür kurz vor der Geschlossenlage beschleunigt
- Low-Energy-Funktion öffnet und schließt die Tür mit reduzierter Fahrgeschwindigkeit und erfüllt damit höchste Sicherheitsanforderungen
- Servo-Funktion zur motorischen Unterstützung bei manueller Öffnung der Tür
- Windfang-Funktion regelt das Öffnen und Schließen von zwei hintereinander liegenden Türen (Schleuse)
- Hinderniserkennung bemerkt ein Hindernis durch Berührung und stoppt den Öffnungs- oder Schließvorgang
- Automatische Reversierung erkennt ein Hindernis und kehrt zurück in die Öffnungsposition
- Push & Go-Funktion löst nach leichtem manuellen Druck auf das Türblatt die Antriebsautomatik aus
- Antrieb kann mit Rollenschiene oder Gestänge verwendet werden
Anwendungsbereiche
- Feuer- und Rauchschutztüren
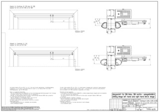
- Einflügelige rechte und linke Anschlagtüren
- Anschlagtüren bis 1400 mm Flügelbreite oder 230 kg Gewicht
- Innen- und Außentüren mit hoher Begehfrequenz
- Türblattmontage und Kopfmontage
Konfigurationsvarianten
- Slimdrive EMD-F
- Slimdrive EMD-F/R
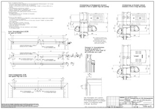
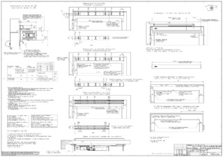
Technische Daten zum Produkt
| Drehtürantriebssystem Slimdrive EMD-F 1-flg. | |
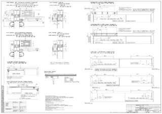
| Höhe | 70 mm |
| Tiefe | 121 mm |
| Flügelgewicht (max.) 1-flügelig | 230 kg |
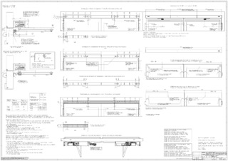
| Bandmaß (min.-max.) 2-flügelig | 1500 mm - 2800 mm |
| Flügelbreite (min.-max.) | 750 mm - 1400 mm |
| Leibungstiefe (max.) | 400 mm |
| Türüberschlag (max.) | 30 mm |
| Antriebstyp | Elektromechanisch |
| Öffnungswinkel (max.) | 130 ° |
| Federvorspannung | EN 4 - EN 6 |
| DIN links | Ja |
| DIN rechts | Ja |
| Kopfmontage Bandgegenseite mit Gestänge | Ja |
| Kopfmontage Bandgegenseite mit Rollenschiene | Ja |
| Kopfmontage Bandseite mit Rollenschiene | Ja |
| Türblattmontage Bandseite mit Rollenschiene | Ja |
| Mechanischer Endschlag | Ja |
| Elektrischer Endschlag | Ja |
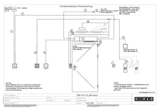
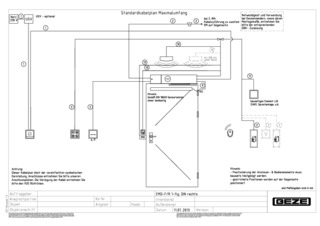
| Elektrische Schließfolgeregelung | Ja |
| Netztrennung | Hauptschalter im Antrieb |
| Ansteuerverzögerung (max.) | 20 s |
| Betriebsspannung | 230 V |
| Nennleistung | 230 W |
| Stromversorgung für externe Verbraucher (24 V DC) | 1000 mA |
| Betriebstemperatur | -15 - 50 °C |
| Schutzart | IP20 |
| Betriebsart | Aus, Automatik, Daueroffen, Ladenschluss, Nacht |
| Auslösen und Reset der Festellanlage | per Taster |
| Funktionsart | Vollautomat |
| Funktion Automatik | Ja |
| Funktion Low-Energy | Ja |
| Funktion Servo | Ja |
| Funktion Tasten | Ja |
| Windfangfunktion | Ja |
| Hinderniserkennung | Ja |
| Automatische Reversierung | Ja |
| Push & Go | einstellbar |
| Bedienung | Programmschalter DPS, Programmschalter im Antrieb integriert |
| Parametrierung | GEZEconnects (PC + Bluetooth), Serviceterminal ST 220 |
| Normkonformität | DIN 18263-4, DIN 18650, EN 16005 |
| Eignung Brandschutztüren | Ja |
Downloads
KENNZEICHNUNGSPFLICHT: © GEZE GmbH
KENNZEICHNUNGSPFLICHT: © GEZE GmbH
KENNZEICHNUNGSPFLICHT: © Lothar Wels / GEZE GmbH
KENNZEICHNUNGSPFLICHT: © Morten Bak / GEZE GmbH
KENNZEICHNUNGSPFLICHT: © Nikolaus Grünwald / GEZE GmbH
KENNZEICHNUNGSPFLICHT: © Nikolaus Grünwald / GEZE GmbH
KENNZEICHNUNGSPFLICHT: © Jürgen Pollak / GEZE GmbH
KENNZEICHNUNGSPFLICHT: © GEZE GmbH
KENNZEICHNUNGSPFLICHT: © GEZE GmbH
KENNZEICHNUNGSPFLICHT: © Lothar Wels / GEZE GmbH
KENNZEICHNUNGSPFLICHT: © Lothar Wels / GEZE GmbH
KENNZEICHNUNGSPFLICHT: © Jürgen Pollak / GEZE GmbH
KENNZEICHNUNGSPFLICHT: © Erwin Kamphuis / GEZE GmbH
KENNZEICHNUNGSPFLICHT: © GEZE GmbH
KENNZEICHNUNGSPFLICHT: © Lothar Wels / GEZE GmbH
KENNZEICHNUNGSPFLICHT: © Nikolaus Grünwald / GEZE GmbH
KENNZEICHNUNGSPFLICHT: © Nikolaus Grünwald / GEZE GmbH
Varianten & Zubehör
* Hinweis zu den gezeigten Produkten
Die aufgeführten Produkte können in der Form, Art, Eigenschaft und Funktion (Design, Maße, Verfügbarkeit, Zulassungen, Normen usw.) länderspezifisch abweichen. Kontaktieren Sie hierzu bitte Ihren GEZE Ansprechpartner oder senden Sie uns gerne eine E-Mail .