TSA 160 NT * Elektrohydraulischer Drehtürantrieb für einflügelige Türen bis 250 kg
- Stufenlos einstellbare Schließkraft von EN3-6
- Öffnungs- und Schließgeschwindigkeit kann individuell angepasst werden
- Hydraulischer Endschlag, der die Tür kurz vor Geschlossenlage beschleunigt
- Mechanische und elektrische Schließfolgeregelung hält den Gangflügel in Warteposition bis der Standflügel geschlossen ist
- Windfang-Funktion regelt das Öffnen und Schließen von zwei hintereinander liegenden Türen (Schleuse)
- Integrierte Öffnungsdämpfung, bremst stark aufgeworfene Türen ab
- Automatische Reversierung erkennt ein Hindernis und kehrt zurück in die Öffnungsposition
- Push & Go-Funktion löst nach leichtem manuellen Druck auf das Türblatt die Antriebsautomatik aus
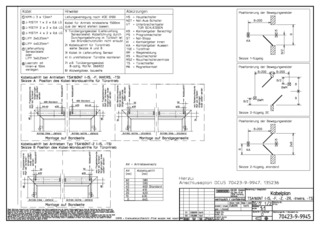
- Antrieb kann mit Rollenschiene oder Gestänge verwendet werden
Anwendungsbereiche
- Einflügelige rechte und linke Anschlagtüren
- Anschlagtüren bis 1400 mm Flügelbreite oder 250 kg Gewicht
- Innen- und Außentüren mit hoher Begehfrequenz
- Türblattmontage und Kopfmontage
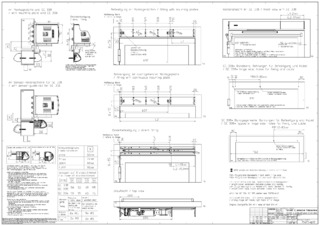
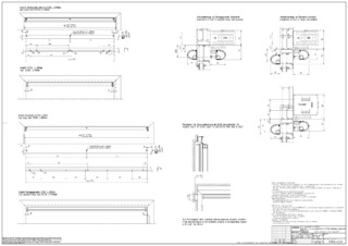
Technische Daten zum Produkt
| TSA 160 NT | |
| Höhe | 100 mm |
| Tiefe | 121 mm |
| Flügelgewicht (max.) 1-flügelig | 250 kg |
| Bandmaß (min.-max.) 2-flügelig | 1470 mm - 2800 mm |
| Flügelbreite (min.-max.) | 690 mm - 1400 mm |
| Leibungstiefe (max.) | 400 mm |
| Türüberschlag (max.) | 20 mm |
| Antriebstyp | Elektrohydraulisch |
| Öffnungswinkel (max.) | 115 ° |
| Federvorspannung | EN3 - EN6 |
| DIN links | Ja |
| DIN rechts | Ja |
| Kopfmontage Bandgegenseite mit Gestänge | Ja |
| Mechanischer Endschlag | Ja |
| Elektrische Schließfolgeregelung | Ja |
| Netztrennung | Nicht vorhanden |
| Ansteuerverzögerung (max.) | 10 s |
| Betriebsspannung | 230 V |
| Nennleistung | 300 W |
| Stromversorgung für externe Verbraucher (24 V DC) | 1200 mA |
| Betriebstemperatur | -15 - 50 °C |
| Schutzart | IP20 |
| Betriebsart | Aus, Automatik, Daueroffen, Ladenschluss, Nacht |
| Funktionsart | Vollautomat |
| Funktion Automatik | Ja |
| Funktion Tasten | Ja |
| Windfangfunktion | Ja |
| Hinderniserkennung | Ja |
| Automatische Reversierung | Ja |
| Push & Go | einstellbar |
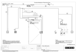
| Bedienung | Programmschalter DPS |
| Parametrierung | GEZEconnects (PC + Bluetooth), Serviceterminal ST 220 |
| Normkonformität | DIN 18650, EN 16005 |
Downloads
KENNZEICHNUNGSPFLICHT: © Lothar Wels / GEZE GmbH
KENNZEICHNUNGSPFLICHT: © Robert Sprang / GEZE GmbH
KENNZEICHNUNGSPFLICHT: © Robert Sprang / GEZE GmbH
KENNZEICHNUNGSPFLICHT: © Robert Sprang / GEZE GmbH
KENNZEICHNUNGSPFLICHT: © Lothar Wels / GEZE GmbH
KENNZEICHNUNGSPFLICHT: © Nikolaus Grünwald / GEZE GmbH
KENNZEICHNUNGSPFLICHT: © Jürgen Pollak / GEZE GmbH
KENNZEICHNUNGSPFLICHT: © Jürgen Pollak / GEZE GmbH
KENNZEICHNUNGSPFLICHT: © Robert Sprang / GEZE GmbH
KENNZEICHNUNGSPFLICHT: © Łukasz Janicki / GEZE GmbH
KENNZEICHNUNGSPFLICHT: © Łukasz Janicki / GEZE GmbH
KENNZEICHNUNGSPFLICHT: © Łukasz Janicki / GEZE GmbH
KENNZEICHNUNGSPFLICHT: © Nikolaus Grünwald / GEZE GmbH
KENNZEICHNUNGSPFLICHT: © Robert Sprang / GEZE GmbH
KENNZEICHNUNGSPFLICHT: © GEZE GmbH
KENNZEICHNUNGSPFLICHT: © GEZE GmbH
KENNZEICHNUNGSPFLICHT: © GEZE GmbH
Varianten & Zubehör
* Hinweis zu den gezeigten Produkten
Die aufgeführten Produkte können in der Form, Art, Eigenschaft und Funktion (Design, Maße, Verfügbarkeit, Zulassungen, Normen usw.) länderspezifisch abweichen. Kontaktieren Sie hierzu bitte Ihren GEZE Ansprechpartner oder senden Sie uns gerne eine E-Mail .