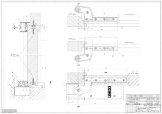
Bodentürschließer 1-flügelig

TS 500 NV mit Feststellung * Bodentürschließer für einflügelige Anschlag-/Pendeltüren bis 1100 mm Flügelbreite mit optionaler Feststellung

TS 550 NV Bodentürschließer für 1-flügelige Anschlag-/Pendeltüren
  • Stufenlos einstellbare Schließkraft EN 1-4
  • Für rechts und links angeschlagene Türen ohne Umstellung verwendbar
  • Mechanische Feststellung im Schließer mit Feststellbereich 85°/90°/105°/120°
  • Schließgeschwindigkeit kann individuell angepasst werden
  • Hydraulischer Endschlag, der die Tür kurz vor Geschlossenlage beschleunigt
  • Integrierte Öffnungsdämpfung, bremst stark aufgeworfene Türen ab
Mehr anzeigen
  • Alle Funktionen von oben und im eingebauten Zustand einstellbar
Kontaktieren Sie uns

Anwendungsbereiche

  • Rechte und linke Anschlag- und Pendeltüren
  • Anschlag- und Pendeltüren bis 1100 mm Flügelbreite und 150 kg Gewicht
  • Bodenmontage verdeckt liegend

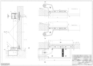
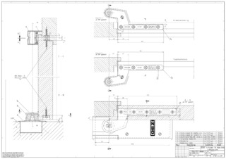
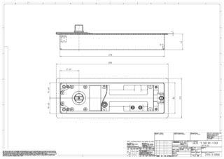
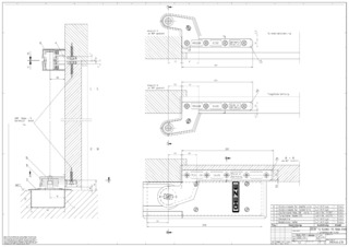
Technische Daten zum Produkt

TS 500 NV mit Feststellung
Einsatz an Anschlag-/Pendeltür Anschlagtür, Pendeltür
Montageart Boden
Öffnungswinkel (max.) 170 °
Schließkraft nach EN 1154 EN 1 - 4
Flügelbreite (max.) 1100 mm
Flügelgewicht (max.) 150 kg
DIN Richtung links / rechts
Schließkraft einstellbar Ja, stufenlos
Schließgeschwindigkeit einstellbar Ja
Endschlag einstellbar Ja, über Ventil
Öffnungsdämpfung integriert mechanisch fix
Position Schließkraftverstellung Oben
Feststellung Mechanisch

Varianten & Zubehör

Kontakt

GEZE Zentrale +41 62 285 54 00 Deutsche Schweiz GEZE Zentrale +41 21 561 25 00 Suisse Romande Hotline +41 800 155 477 Deutsche Schweiz Hotline +41 800 155 470 Suisse Romande