Boxer E-ISM * Integriertes Türschließersystem für zweiflügelige Türen mit Schließfolgeregelung und elektrischer Feststellung
- System aus zwei Boxer Türschließern und E-ISM Gleitschiene
- Stufenlos einstellbare Schließkraft von EN 2-4 oder EN 3-6
- Für rechts und links angeschlagene Türen ohne Umstellung verwendbar
- Türschließer ist in Türblatt und Zarge eingelassen und erfüllt höchste Designansprüche
- Schließfolgeregelung hält den Gangflügel in Warteposition bis der Standflügel geschlossen ist
- Elektrische Feststellung in der Gleitschiene mit Feststellbereich 80°-120°
- Haltekraft der Feststellung ist stufenlos einstellbar
- Rauchschalterzentrale anschließbar, deren Signal im Brandfall die Tür selbstständig schließen lässt
- Integrierte Öffnungsdämpfung, bremst stark aufgeworfene Türen ab
- Hydraulischer Endschlag, der die Tür kurz vor Geschlossenlage beschleunigt
- Schließgeschwindigkeit kann individuell angepasst werden
- Alle Funktionen sind im eingebauten Zustand einstellbar
Anwendungsbereiche
- Feuer- und Rauchschutztüren, Eignungsnachweis mit der Tür erforderlich
- Zweiflügelige Anschlagtüren
- Symmetrische und asymmetrische Türteilung möglich
- Anschlagtüren bis 2800 mm Bandabstand und 1400 mm Flügelbreite, für Türgewichte bis 180 kg
- Minimaler Bandabstand 1300 mm, minimale Breite des Standflügels 540 mm
- Für Türblattstärken ab 40 mm
- Integrierte Montage
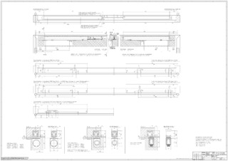
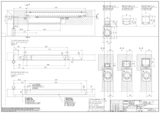
Technische Daten zum Produkt
| Boxer E-ISM | |
| Schließkraft nach EN 1154 | EN 2 - 6 |
| Barrierefrei nach DIN 18040 bis Flügelbreite (max.) in mm | 1400 mm |
| Flügelbreite (max.) | 1400 mm |
| Flügelgewicht (max.) | 180 kg |
| Montageart | Verdecktliegend |
| Öffnungswinkel (max.) | 120 ° |
| Minimaler Bandabstand | 1300 mm |
| Minimale Standflügelbreite | 540 mm |
| Eignung Brandschutztüren | Ja |
| Schließkraft einstellbar | Ja, stufenlos |
| Schließgeschwindigkeit einstellbar | Ja |
| Endschlag einstellbar | Ja, über Ventil |
| Öffnungsdämpfung integriert | Ja, hydraulisch einstellbar |
| Position Schließkraftverstellung | Oben |
| Feststellung | Elektrisch |
| Feststellung am Gangflügel / Standflügel | Ja / Ja |
| Schließfolgeregelung integriert | Ja |
Downloads
KENNZEICHNUNGSPFLICHT: © GEZE GmbH
KENNZEICHNUNGSPFLICHT: © Erwin Kamphuis / GEZE GmbH
KENNZEICHNUNGSPFLICHT: © Dirk Wilhelmy / GEZE GmbH
Varianten & Zubehör
* Hinweis zu den gezeigten Produkten
Die aufgeführten Produkte können in der Form, Art, Eigenschaft und Funktion (Design, Maße, Verfügbarkeit, Zulassungen, Normen usw.) länderspezifisch abweichen. Kontaktieren Sie hierzu bitte Ihren GEZE Ansprechpartner oder senden Sie uns gerne eine E-Mail .