Boxer Freilauftürschließer

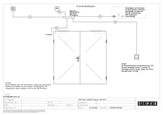
Boxer ISM-EFS * Integriertes Türschließersystem für zweiflügelige Türen mit Schließfolgeregelung und elektrischer Freilauffunktion

Türschließer Boxer ISM-EFS Integriertes Türschließersystem für zweiflügelige Türen mit Schließfolgeregelung, elektrischer Feststellung und Integrierter Öffnungsdämpfung welche stark aufgeworfene Türen abbremst.
  • System aus zwei Türschließern Boxer EFS- 4-6 und Boxer 2-4 oder 3-6 mit ISM Gleitschiene
  • Stufenlos einstellbare Schließkraft von EN4-6 am Gangflügel, EN3-6 oder EN2-4 am Standflügel
  • Für rechts und links angeschlagene Türen ohne Umstellung verwendbar
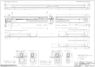
  • Türschließer ist in Türblatt und Zarge eingelassen und erfüllt höchste Designansprüche
  • Schließfolgeregelung hält den Gangflügel in Warteposition bis der Standflügel geschlossen ist
  • Freilauffunktion ermöglicht das Begehen der Tür mit geringem Kraftaufwand
Mehr anzeigen
  • Komfortrastfunktion arretiert die Tür am Ende des Freilaufbereichs
  • Rauchschalterzentrale anschließbar, deren Signal im Brandfall die Tür selbstständig schließen lässt
  • Integrierte Öffnungsdämpfung, bremst stark aufgeworfene Türen ab
  • Hydraulischer Endschlag, der die Tür kurz vor Geschlossenlage beschleunigt
  • Schließgeschwindigkeit kann individuell angepasst werden
  • Alle Funktionen sind im eingebauten Zustand einstellbar
Kontaktieren Sie uns

Anwendungsbereiche

  • Feuer- und Rauchschutztüren, Eignungsnachweis mit der Tür erforderlich
  • Zweiflügelige Anschlagtüren
  • Symmetrische und asymmetrische Türteilung möglich
  • Anschlagtüren bis 2800 mm Bandabstand und 1400 mm Flügelbreite, für Türgewichte bis 180 kg
  • Minimaler Bandabstand 1300 mm, minimale Breite des Standflügels 540 mm
  • Für Türblattstärken ab 50 mm
  • Integrierte Montage
  • Feststellanlagen mit integrierter Feststellung mit Freilauf
  • Barrierefreie Zugänge nach DIN 18040

Technische Daten zum Produkt

Boxer ISM-EFS
Schließkraft nach EN 1154 EN 2 - 6
Barrierefrei nach DIN 18040 bis Flügelbreite (max.) in mm 1400 mm
Flügelbreite (max.) 1400 mm
Flügelgewicht (max.) 180 kg
Montageart Verdecktliegend
Öffnungswinkel (max.) 120 °
Minimaler Bandabstand 1300 mm
Minimale Standflügelbreite 540 mm
Eignung Brandschutztüren Ja
Schließkraft einstellbar Ja, stufenlos
Schließgeschwindigkeit einstellbar Ja
Endschlag einstellbar Ja, über Ventil
Öffnungsdämpfung integriert Ja, hydraulisch einstellbar
Position Schließkraftverstellung Oben
Feststellung Optional
Feststellung am Gangflügel / Standflügel Ja / Optional
Schließfolgeregelung integriert Ja

Downloads

Varianten & Zubehör

Kontakt

GEZE Zentrale +41 62 285 54 00 Deutsche Schweiz GEZE Zentrale +41 21 561 25 00 Suisse Romande Hotline +41 800 155 477 Deutsche Schweiz Hotline +41 800 155 470 Suisse Romande