T-Stop Gleitschiene * Zur Öffnungsbegrenzung oder Feststellung von Türen ohne Türschließer
- Offenhalten von Türen ohne Türschließer, nicht selbstschließend
- Für rechts und links angeschlagene Türen ohne Umstellung verwendbar
- Öffnungswinkel der Tür wird begrenzt und ein Türstopper wird meist überflüssig
- Ohne Türstopper gewinnt der Türbereich an Ästhetik, Stolperfallen und Schmutzecken entfallen
- Quetschungen zwischen Türblatt und Bodenstopper werden vermieden
Anwendungsbereiche
- Rechte und linke Anschlagtüren
- Öffnungsbegrenzung für Anschlagtüren ohne Türschließer
- Türsysteme ohne Rauch- und Feuerschutzanforderungen
- Zur Kombination eines automatischen Drehtürantriebs mit einem TS 5000 an zweiflügeligen Türsystemen
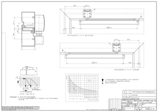
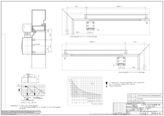
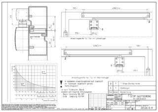
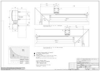
Technische Daten zum Produkt
| T-Stop Gleitschiene | |
| Montageart | Türblattmontage Bandseite, Kopfmontage Bandgegenseite, Kopfmontage Bandseite, Türblattmontage Bandgegenseite |
| Feststellung | Optional |
Downloads
KENNZEICHNUNGSPFLICHT: © GEZE GmbH
Varianten & Zubehör
* Hinweis zu den gezeigten Produkten
Die aufgeführten Produkte können in der Form, Art, Eigenschaft und Funktion (Design, Maße, Verfügbarkeit, Zulassungen, Normen usw.) länderspezifisch abweichen. Kontaktieren Sie hierzu bitte Ihren GEZE Ansprechpartner oder senden Sie uns gerne eine E-Mail .