Freilauftürschließer 2-flügelig

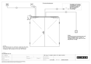
TS 5000 R-ISM/0 mit Freilauffunktion * Gleitschienentürschließersystem für zweiflügelige Türen mit integrierter Schließfolgeregelung, Freilauffunktion am Gangflügel und integriertem Rauchschalter

Gleitschienentürschließersystem TS 5000 ISM Türschließer für zweiflügelige Türen mit Schließfolgeregelung und mit integrierter Öffnungsdämpfung,was bewirkt, dass die stark aufgeworfene Türen abgebremst wird.
  • System aus TS 5000 E Hy 3-6 und TS 5000 und R-ISM/0-Gleitschiene
  • Standflügel mit TS 5000 mit Schließkraft EN 2-6 oder TS 5000 ECline mit Schließkraft EN 3-5
  • Gangflügel mit TS 5000 E Hy (24 V) und einstellbarer Schließkraft EN 3-6
  • Elektrische Feststellung des Standflügels über Haftmagnet möglich
  • Feststellung am Gangflügel erfolgt über Freilauftürschließer
  • Komfortrastfunktion am Gangflügel zur Arretierung der Tür im maximalen Öffnungswinkel
Mehr anzeigen
  • Betriebsspannung 230 V AC
  • Schließfolgeregelung hält den Gangflügel in Warteposition bis der Standflügel geschlossen ist
  • Integrierte Rauchschalterzentrale, deren Signal im Brandfall die Tür selbstständig schließt
  • Rauchschalter mit Verschmutzungsanzeige und Alarmschwellennachführung
  • Hydraulischer Endschlag, der die Tür kurz vor Geschlossenlage beschleunigt
  • Schließgeschwindigkeit kann individuell angepasst werden
  • Integrierte Öffnungsdämpfung, bremst stark aufgeworfene Türen ab
  • Optische Schließkraftanzeige zum leichten Kontrollieren der Einstellung
  • Alle Funktionen von vorn einstellbar
Kontaktieren Sie uns

Anwendungsbereiche

  • Feuer- und Rauchschutztüren
  • Zweiflügelige rechte und linke Anschlagtüren
  • Symmetrische und asymmetrische Türteilung möglich
  • Anschlagtüren bis 2800 mm Bandabstand und 1400 mm Flügelbreite
  • Minimaler Bandabstand 1500 mm, minimale Breite des Gangflügels 875 mm und des Standflügels 400 mm
  • Feststellanlagen mit integriertem Rauchschalter
  • Türblattmontage Bandseite

Technische Daten zum Produkt

TS 5000 R-ISM/0 mit Freilauffunktion
Barrierefrei nach DIN 18040 bis Flügelbreite (max.) in mm 1400 mm
Flügelbreite (max.) 1400 mm
Montageart Türblattmontage Bandseite
Öffnungswinkel (max.) 180 °
Eingangsspannung 230 V AC
Frequenz Versorgungsspannung 50 Hz
Minimaler Bandabstand 1500 mm
Minimale Standflügelbreite 400 mm
Eignung Brandschutztüren Ja
Freilaufbereich 85 ° - 160 °
Schließkraft einstellbar Ja, stufenlos
Schließgeschwindigkeit einstellbar Ja
Endschlag einstellbar Ja, über Ventil
Öffnungsdämpfung integriert Ja, hydraulisch einstellbar
Position Schließkraftverstellung Vorn
Optische Schließkraftanzeige Ja
Feststellung Elektrisch
Feststellung am Gangflügel / Standflügel Ja / Nein
Rauchschalter integriert Ja
Schließfolgeregelung integriert Ja

Downloads

Varianten & Zubehör

Kontakt

GEZE Zentrale +41 62 285 54 00 Deutsche Schweiz GEZE Zentrale +41 21 561 25 00 Suisse Romande Hotline +41 800 155 477 Deutsche Schweiz Hotline +41 800 155 470 Suisse Romande