Gestänge 2-flügelig

TS 4000 E-IS * Gestängetürschließersystem für zweiflügelige Türen mit Schließfolgeregelung und elektrischer Feststellung

TS 4000 E-IS Obenliegender Türschließer für Feuerschutztüren und Rauchschutztüren, Zahntrieb-Türschließer mit elektrohydraulischer Feststellung nach EN 1155 und von vorn einstellbarer Schließkraft
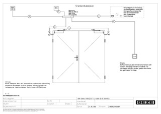
  • System aus zwei Türschließern TS 4000 E-IS (Gangflügel) und TS 4000 E (Standflügel) und Auslösemechanik
  • Stufenlos einstellbare Schließkraft EN 1-6
  • Betriebsspannung 24 V DC
  • Für rechts und links angeschlagene Türen ohne Umstellung verwendbar
  • Beidseitige elektrische Feststellung mit einem Feststellbereich von 80°-175°
  • Schließfolgeregelung hält den Gangflügel in Warteposition bis der Standflügel geschlossen ist
Mehr anzeigen
  • Integrierte Öffnungsdämpfung am Standflügel, bremst stark aufgeworfene Türen ab
  • Mechanischer Endschlag, der die Tür kurz vor Geschlossenlage beschleunigt
  • Schließgeschwindigkeit kann individuell angepasst werden
  • Optische Schließkraftanzeige zum leichten Kontrollieren der Einstellung
  • Alle Funktionen von vorn einstellbar (außer Endschlag)
Kontaktieren Sie uns

Anwendungsbereiche

  • Feuer- und Rauchschutztüren
  • Zweiflügelige Anschlagtüren
  • Anschlagtüren bis 2800 mm Bandabstand und 1400 mm Flügelbreite
  • Türblattmontage Bandseite und Kopfmontage Bandgegenseite (unterschiedliche Varianten)
  • Feststellanlagen mit integrierter Feststellung

Technische Daten zum Produkt

TS 4000 E-IS
Schließkraft nach EN 1154 EN 1 - 6
Barrierefrei nach DIN 18040 bis Flügelbreite (max.) in mm 1400 mm
Flügelbreite (max.) 1400 mm
Montageart Türblattmontage Bandseite, Kopfmontage Bandgegenseite
Öffnungswinkel (max.) 180 °
Eingangsspannung 24 V DC
Eignung Brandschutztüren Ja
Schließkraft einstellbar Ja, stufenlos
Schließgeschwindigkeit einstellbar Ja
Endschlag einstellbar Ja, über Gestänge
Position Schließkraftverstellung Vorn
Optische Schließkraftanzeige Ja
Feststellung am Gangflügel / Standflügel Ja / Ja
Feststellbereich 80 ° - 175 °
Schließfolgeregelung integriert Ja

Downloads

Varianten & Zubehör

Kontakt

GEZE Zentrale +41 62 285 54 00 Deutsche Schweiz GEZE Zentrale +41 21 561 25 00 Suisse Romande Hotline +41 800 155 477 Deutsche Schweiz Hotline +41 800 155 470 Suisse Romande