TS 5000 ECline * Gleitschienentürschließer für barrierefreie einflügelige Türen bis 1250 mm Flügelbreite mit Öffnungsunterstützung
- Stufenlos einstellbare Schließkraft von EN3-5
- Barrierefrei nach DIN 18040 bis EN5 (1250 mm Flügelbreite)
- Für rechts und links angeschlagene Türen ohne Umstellung verwendbar
- Öffnungsunterstützung für ein leichtes Öffnen und komfortables Begehen der Tür
- Öffnungsunterstützung abschaltbar bei Türen mit Windbelastung oder Druckunterschieden
- Hydraulischer Endschlag, der die Tür kurz vor Geschlossenlage beschleunigt
- Schließgeschwindigkeit kann individuell angepasst werden
- Integrierte Öffnungsdämpfung, bremst stark aufgeworfene Türen ab
- Optische Schließkraftanzeige zum leichten Kontrollieren der Einstellung
- Alle Funktionen von vorn einstellbar und kein höherer Montageaufwand gegenüber Standardsystemen
Anwendungsbereiche
- Feuer- und Rauchschutztüren
- Rechte und linke Anschlagtüren
- Anschlagtüren bis 1250 mm Flügelbreite
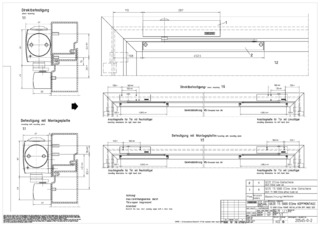
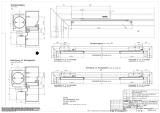
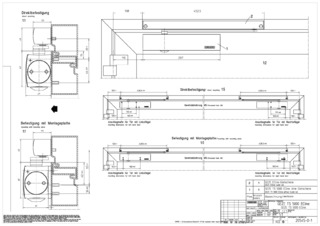
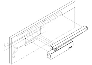
- Türblattmontage Bandseite
- Barrierefreie Zugänge nach DIN 18040 bis EN5
Einbausituationen in Referenzobjekten und Videos
Technische Daten zum Produkt
| TS 5000 ECline | |
| Schließkraft nach EN 1154 | EN 3 - 5 |
| Barrierefrei nach DIN 18040 bis Flügelbreite (max.) in mm | 1250 mm |
| Flügelbreite (max.) | 1250 mm |
| Montageart | Türblattmontage Bandseite |
| Öffnungswinkel (max.) | 180 ° |
| Eignung Brandschutztüren | Ja |
| Schließkraft einstellbar | Ja, stufenlos |
| Schließgeschwindigkeit einstellbar | Ja |
| Endschlag einstellbar | Ja, über Ventil |
| Öffnungsdämpfung integriert | Ja, hydraulisch einstellbar |
| Öffnungsunterstützung integriert | Ja |
| Position Schließkraftverstellung | Vorn |
| Optische Schließkraftanzeige | Ja |
| Feststellung | Optional |
Downloads
KENNZEICHNUNGSPFLICHT: © Jürgen Pollak / GEZE GmbH
KENNZEICHNUNGSPFLICHT: © Jürgen Biniasch / GEZE GmbH
KENNZEICHNUNGSPFLICHT: © GEZE GmbH
Varianten & Zubehör
* Hinweis zu den gezeigten Produkten
Die aufgeführten Produkte können in der Form, Art, Eigenschaft und Funktion (Design, Maße, Verfügbarkeit, Zulassungen, Normen usw.) länderspezifisch abweichen. Kontaktieren Sie hierzu bitte Ihren GEZE Ansprechpartner oder senden Sie uns gerne eine E-Mail .