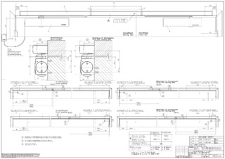
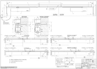
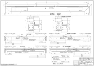
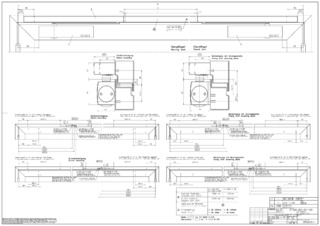
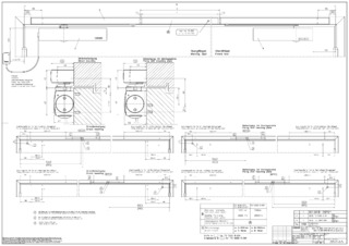
E-ISM/S Gleitschiene TS 5000 * durchgehend, mit integrierter Schließfolgeregelung, elektrischer Feststellung am Standflügel und Hebeln
- Elektrische Feststellung am Standflügel mit Feststellbereich 80°-130°
- Haltekraft der elektromechanischen Feststellung stufenlos einstellbar
- Betriebsspannung 24 V DC
- Schließfolgeregelung hält den Gangflügel in Warteposition bis der Standflügel geschlossen ist
- Vandalismusschutz durch flexiblen Bowdenzug
- Durch Langlöcher in der Montageposition um 4 mm horizontal verstellbar
Anwendungsbereiche
- Zweiflügelige Türen mit Schließfolgeregelung
- Feststellanlagen mit integrierter Feststellung am Standflügel
- Für die Kombination mit einem Freilaufschließer oder Haftmagnet am Gangflügel
- Montage auf der Bandseite
- Rechte und linke Anschlagtüren
- Symmetrische und asymmetrische Türteilung möglich
- Bis 2800 mm Bandabstand
- Minimaler Bandabstand 1300 mm, minimale Breite des Standflügels 400 mm
Technische Daten zum Produkt
| E-ISM/S Gleitschiene TS 5000 | |
| Eingangsspannung | 24 V DC |
| Elektrische Leistungsaufnahme | 2.4 W |
| Einschaltdauer | 100 % |
| Restwelligkeit | 20 % |
| Schutzart | IP43 |
| Minimaler Bandabstand | 1300 mm |
| Minimale Standflügelbreite | 400 mm |
| Normkonformität | EN 1155, EN 1158 |
| Länge | 2630 mm |
| Breite | 40 mm |
| Höhe | 30 mm |
| Öffnungsbegrenzung nachrüstbar | Ja |
| Feststellung | Elektrisch |
| Feststellung am Gangflügel / Standflügel | Optional / Ja |
| Feststellung überfahrbar | Ja |
| Feststellbereich | 130 ° - 80 ° |
| Schließfolgeregelung integriert | Ja |
| Höhenkorrektur möglich | Ja |
| Flexible Öffnungsbegrenzung | Ja |
Downloads
KENNZEICHNUNGSPFLICHT: © GEZE GmbH
Varianten & Zubehör
* Hinweis zu den gezeigten Produkten
Die aufgeführten Produkte können in der Form, Art, Eigenschaft und Funktion (Design, Maße, Verfügbarkeit, Zulassungen, Normen usw.) länderspezifisch abweichen. Kontaktieren Sie hierzu bitte Ihren GEZE Ansprechpartner oder senden Sie uns gerne eine E-Mail .