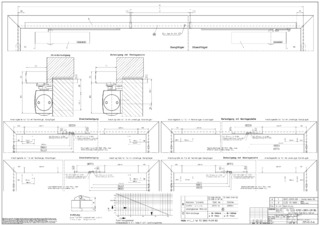
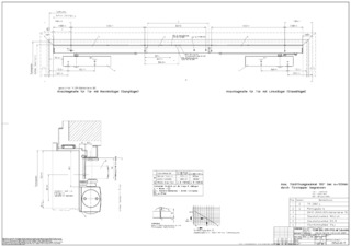
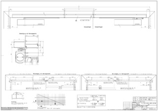
Gleitschiene 2-flügelig

TS 5000 L-E-ISM * Gleitschienentürschließersystem Bandgegenseite für zweiflügelige Türen bis 2800 mm Bandabstand mit integrierter Schließfolgeregelung und elektrischer Feststellung

Türschließer TS 5000 L-ISM Obentürschließersystem für 2-flügelige Türen mit integrierter mechanischer Schließfolgeregelung, Standardmontage auf Türblatt/Bandgegenseite
  • System aus zwei Türschließern TS 5000 L und E-ISM Gleitschiene
  • Stufenlos einstellbare Schließkraft von EN 2-6
  • Betriebsspannung 24 V DC
  • Elektrische Feststellung in der Gleitschiene mit Feststellbereich ab 80°
  • Elektrische Feststellung in der Gleitschiene mit Feststellbereich 80°-130°
  • Schließfolgeregelung hält den Gangflügel in Warteposition bis der Standflügel geschlossen ist
Mehr anzeigen
  • Hydraulischer Endschlag, der die Tür kurz vor Geschlossenlage beschleunigt
  • Schließgeschwindigkeit kann individuell angepasst werden
  • Integrierte Öffnungsdämpfung, bremst stark aufgeworfene Türen ab
  • Optische Schließkraftanzeige zum leichten Kontrollieren der Einstellung
  • Alle Funktionen von vorn einstellbar
Kontaktieren Sie uns

Anwendungsbereiche

  • Feuer- und Rauchschutztüren
  • Zweiflügelige Anschlagtüren
  • Symmetrische und asymmetrische Türteilung möglich
  • Anschlagtüren bis 2800 mm Bandabstand und 1400 mm Flügelbreite
  • Minimaler Bandabstand 1360 mm, minimale Breite des Standflügels 380 mm
  • Panikfunktion am Gangflügel verfügbar
  • Türblattmontage Bandgegenseite
  • Feststellanlagen mit integrierter Feststellung

Technische Daten zum Produkt

TS 5000 L-E-ISM
Barrierefrei nach DIN 18040 bis Flügelbreite (max.) in mm 1400 mm
Flügelbreite (max.) 1400 mm
Montageart Türblattmontage Bandgegenseite
Öffnungswinkel (max.) 130 °
Eingangsspannung 24 V DC
Minimaler Bandabstand 1360 mm
Minimale Standflügelbreite 380 mm
Eignung Brandschutztüren Ja
Schließkraft einstellbar Ja, stufenlos
Schließgeschwindigkeit einstellbar Ja
Endschlag einstellbar Ja, über Ventil
Öffnungsdämpfung integriert Ja, hydraulisch einstellbar
Position Schließkraftverstellung Vorn
Optische Schließkraftanzeige Ja
Feststellung Elektrisch
Feststellung am Gangflügel / Standflügel Ja / Ja
Feststellbereich 80 °
Schließfolgeregelung integriert Ja

Downloads

Varianten & Zubehör

Kontakt

GEZE Zentrale +41 62 285 54 00 Deutsche Schweiz GEZE Zentrale +41 21 561 25 00 Suisse Romande Hotline +41 800 155 477 Deutsche Schweiz Hotline +41 800 155 470 Suisse Romande