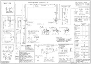
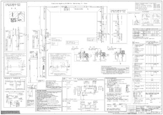
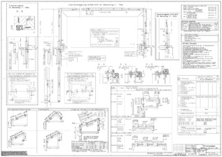
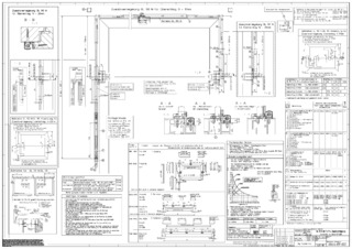
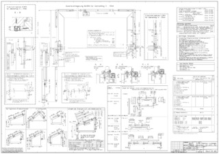
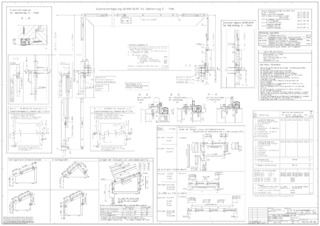
Zusatzverriegelung für OL 90 N / OL 95 * Zusatzverriegelung für Überschlaghöhen 0 - 17 mm
- Sichtbare Verriegelung - rahmenseitiges Bauteil greift in flügelseitiges Bauteil ein
- Verbesserung der Dichtigkeit und Sicherheit
- Zur sicheren Verriegelung ist kein bauseitiger Zentralverschluss nötig
- Bedienbar mit dem Handhebel, Kurbel und E 212
Anwendungsbereiche
- Verriegelung am Rechteck-, Schräg- und Dreieckfenster
- Einsetzbar in Kombination mit einer OL 90 N und OL 95 Schere
- Montage an Holz-, Kunststoff- und Leichtmetallfenstern
- Rahmen- und Flügelmontage
Technische Daten zum Produkt
| Zusatzverriegelung für OL 90 N / OL 95 | |
| Flügelbreite (min.) | 380 mm |
Downloads
KENNZEICHNUNGSPFLICHT: © GEZE GmbH
Varianten & Zubehör
* Hinweis zu den gezeigten Produkten
Die aufgeführten Produkte können in der Form, Art, Eigenschaft und Funktion (Design, Maße, Verfügbarkeit, Zulassungen, Normen usw.) länderspezifisch abweichen. Kontaktieren Sie hierzu bitte Ihren GEZE Ansprechpartner oder senden Sie uns gerne eine E-Mail .