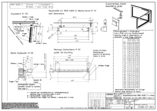
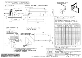
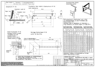
RWA K 600 G * Klapphebelantrieb zur Montage an Fenstern und Türen mit fester Anbindung mittels Gleitschiene
- 90° Fensteröffnung in weniger als 60 Sekunden
- Starker Antrieb mit hohem Drehmoment
- Anschlusskabel mittels Stecker einfach austauschbar
- Integrierter Meldekontakt für Rückmeldungen
- Integriertes Syncro-Modul das max. zwei Antriebe ohne externes Steuergerät betreiben kann
- Geprüft als Natürliches Rauch- und Wärmeabzugsgerät (NRWG) nach EN 12101-2
Anwendungsbereiche
- RWA und natürliche Lüftung (24 V)
- Einwärts und auswärts öffnende Fenster mit Kipp-, Klapp- und Drehflügeln
- Montage an Holz-, Kunststoff- oder Metallfenstern
- Flügel- und Rahmenmontage
- Montage an der Tür möglich
Einbausituationen in Referenzobjekten und Videos
Technische Daten zum Produkt
| RWA K 600 G | |
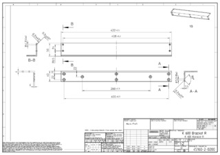
| Abmessungen | 421 x 40 x 86 mm |
| Gehäusematerial | Aluminium |
| Zuhaltekraft (max.) | 3000 N |
| Druckkraft | 600 N |
| Zugkraft | 600 N |
| Spannung im Betrieb | 24 V ± 25 % |
| Betriebsspannung | 24 V DC |
| Stromaufnahme | 1.4 A |
| Restwelligkeit | 20 % |
| Einschaltdauer | 30 % |
| Anschlusskabel Länge | 5 m |
| Sonderlänge Anschlusskabel | 10 m |
| Min. Aderquerschnitt | 0.5 mm² |
| Anzahl der Adern | 5 Adern |
| Betriebstemperatur | -5 - 75 °C |
| Schutzart | IP32 |
| Schutzklasse | III |
| Syncro-Funktion | Ja |
| Öffnungsgeschwindigkeit einstellbar (Lüftung) | Ja |
| Zusätzliche Verriegelung erhältlich | Ja |
| Art der Zusatzverriegelung | Verriegelungsantrieb |
| Art der Hubverkürzung | Einstellgerät |
| Endlagenabschaltung ausgefahren | Interner Weggeber |
| Endlagenabschaltung eingefahren | Interner Weggeber |
| Überlastabschaltung | Ja |
| NRWG geprüft | Ja |
| Anzahl Synchronisierung Antriebe | 2 |
| Kippfenster EINWÄRTS Rahmenmontage | Ja |
| Kippfenster EINWÄRTS Flügelmontage | Ja |
| Kippfenster AUSWÄRTS Rahmenmontage | Ja |
| Kippfenster AUSWÄRTS Flügelmontage | Ja |
| Drehfenster EINWÄRTS Rahmenmontage | Ja |
| Drehfenster EINWÄRTS Flügelmontage | Ja |
| Drehfenster AUSWÄRTS Rahmenmontage | Ja |
| Drehfenster AUSWÄRTS Flügelmontage | Ja |
| Klappfenster EINWÄRTS Rahmenmontage | Ja |
| Klappfenster EINWÄRTS Flügelmontage | Ja |
| Klappfenster AUSWÄRTS Rahmenmontage | Ja |
| Klappfenster AUSWÄRTS Flügelmontage | Ja |
Downloads
Varianten & Zubehör
* Hinweis zu den gezeigten Produkten
Die aufgeführten Produkte können in der Form, Art, Eigenschaft und Funktion (Design, Maße, Verfügbarkeit, Zulassungen, Normen usw.) länderspezifisch abweichen. Kontaktieren Sie hierzu bitte Ihren GEZE Ansprechpartner oder senden Sie uns gerne eine E-Mail .