TS 5000 * Gleitschienentürschließer für einflügelige Türen bis 1400 mm Flügelbreite
- Stufenlos einstellbare Schließkraft von EN2-6
- Für rechts und links angeschlagene Türen ohne Umstellung verwendbar
- Hydraulischer Endschlag, der die Tür kurz vor Geschlossenlage beschleunigt
- Schließgeschwindigkeit kann individuell angepasst werden
- Integrierte Öffnungsdämpfung, bremst stark aufgeworfene Türen ab
- Optische Schließkraftanzeige zum leichten Kontrollieren der Einstellung
Dieser Obenliegende Türschließer für einflügelige Türen steht für eine klare Linienführung. Er ist für die Montage an Feuer- und Rauchschutztüren zugelassen.
Anwendungsbereiche
- Feuer- und Rauchschutztüren
- Rechte und linke Anschlagtüren
- Anschlagtüren bis 1400 mm Flügelbreite
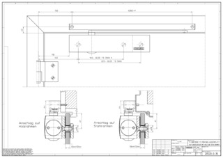
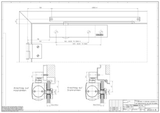
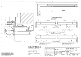
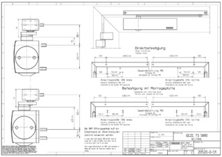
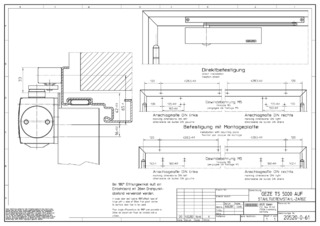
- Türblattmontage Bandseite und Kopfmontage Bandgegenseite
Einbausituationen in Referenzobjekten und Videos
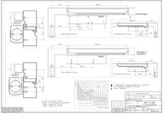
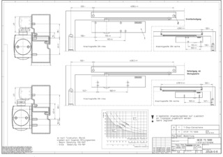
Technische Daten zum Produkt
| TS 5000 | |
| Schließkraft nach EN 1154 | EN 2 - 6 |
| Barrierefrei nach DIN 18040 bis Flügelbreite (max.) in mm | 1100 mm |
| Flügelbreite (max.) | 1400 mm |
| Montageart | Türblattmontage Bandseite, Kopfmontage Bandgegenseite |
| Öffnungswinkel (max.) | 180 ° |
| Eignung Brandschutztüren | Ja |
| Schließkraft einstellbar | Ja, stufenlos |
| Schließgeschwindigkeit einstellbar | Ja |
| Endschlag einstellbar | Ja, über Ventil |
| Öffnungsdämpfung integriert | Ja, hydraulisch einstellbar |
| Position Schließkraftverstellung | Vorn |
| Optische Schließkraftanzeige | Ja |
| Feststellung | Optional |
Downloads
KENNZEICHNUNGSPFLICHT: © Robert Sprang / GEZE GmbH
KENNZEICHNUNGSPFLICHT: © Jürgen Pollak / GEZE GmbH
KENNZEICHNUNGSPFLICHT: © Jürgen Pollak / GEZE GmbH
KENNZEICHNUNGSPFLICHT: © Robert Les / GEZE GmbH
KENNZEICHNUNGSPFLICHT: © Robert Sprang / GEZE GmbH
KENNZEICHNUNGSPFLICHT: © Dirk Wilhelmy / GEZE GmbH
KENNZEICHNUNGSPFLICHT: © Jürgen Biniasch / GEZE GmbH
KENNZEICHNUNGSPFLICHT: © Martin Jakob / GEZE GmbH
KENNZEICHNUNGSPFLICHT: © Robert Les / GEZE GmbH
KENNZEICHNUNGSPFLICHT: © Robert Les / GEZE GmbH
KENNZEICHNUNGSPFLICHT: © Dirk Wilhelmy / GEZE GmbH
KENNZEICHNUNGSPFLICHT: © Dirk Wilhelmy / GEZE GmbH
KENNZEICHNUNGSPFLICHT: © Robert Les / GEZE GmbH
KENNZEICHNUNGSPFLICHT: © Lothar Wels / GEZE GmbH
KENNZEICHNUNGSPFLICHT: © Robert Les / GEZE GmbH
KENNZEICHNUNGSPFLICHT: © Robert Sprang / GEZE GmbH
KENNZEICHNUNGSPFLICHT: © Nikolaus Grünwald / GEZE GmbH
KENNZEICHNUNGSPFLICHT: © Lothar Wels / GEZE GmbH
KENNZEICHNUNGSPFLICHT: © Lothar Wels / GEZE GmbH
KENNZEICHNUNGSPFLICHT: © Dirk Wilhelmy / GEZE GmbH
KENNZEICHNUNGSPFLICHT: © Jürgen Pollak / GEZE GmbH
KENNZEICHNUNGSPFLICHT: © GEZE GmbH
KENNZEICHNUNGSPFLICHT: © GEZE GmbH
KENNZEICHNUNGSPFLICHT: © GEZE GmbH
Varianten & Zubehör
* Hinweis zu den gezeigten Produkten
Die aufgeführten Produkte können in der Form, Art, Eigenschaft und Funktion (Design, Maße, Verfügbarkeit, Zulassungen, Normen usw.) länderspezifisch abweichen. Kontaktieren Sie hierzu bitte Ihren GEZE Ansprechpartner oder senden Sie uns gerne eine E-Mail .