TS 3000 V BC * Gleitschienentürschließer für einflügelige Türen bis 1100 mm Flügelbreite
- Stufenlos einstellbare Schließkraft von EN 2-4
- Für rechts und links angeschlagene Türen ohne Umstellung verwendbar
- Integrierte Öffnungsdämpfung, bremst stark aufgeworfene Türen ab
- Hydraulischer Endschlag, der die Tür kurz vor Geschlossenlage beschleunigt
- Schließgeschwindigkeit kann individuell angepasst werden
- Alle Funktionen von vorn einstellbar (außer Schließkraft)
Anwendungsbereiche
- Feuer- und Rauchschutztüren
- Rechte und linke Anschlagtüren
- Anschlagtüren bis 1100 mm Flügelbreite
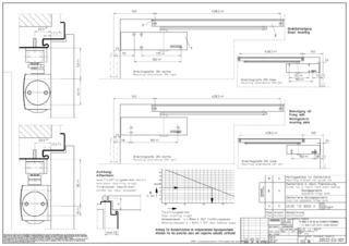
- Türblattmontage Bandseite
- Türblattmontage Bandgegenseite
- Kopfmontage Bandseite
- Kopfmontage Bandgegenseite
Einbausituationen in Referenzobjekten und Videos
Technische Daten zum Produkt
| TS 3000 V BC | |
| Schließkraft nach EN 1154 | EN 2 - 4 |
| Barrierefrei nach DIN 18040 bis Flügelbreite (max.) in mm | 1100 mm |
| Flügelbreite (max.) | 1100 mm |
| Montageart | Türblattmontage Bandseite, Türblattmontage Bandgegenseite, Kopfmontage Bandseite, Kopfmontage Bandgegenseite |
| Öffnungswinkel (max.) | 180 ° |
| Eignung Brandschutztüren | Ja |
| Schließkraft einstellbar | Ja, stufenlos |
| Schließgeschwindigkeit einstellbar | Ja |
| Endschlag einstellbar | Ja, über Ventil |
| Öffnungsdämpfung integriert | Ja, hydraulisch einstellbar |
| Position Schließkraftverstellung | Seitlich |
| Feststellung | Optional |
Downloads
Varianten & Zubehör
* Hinweis zu den gezeigten Produkten
Die aufgeführten Produkte können in der Form, Art, Eigenschaft und Funktion (Design, Maße, Verfügbarkeit, Zulassungen, Normen usw.) länderspezifisch abweichen. Kontaktieren Sie hierzu bitte Ihren GEZE Ansprechpartner oder senden Sie uns gerne eine E-Mail .