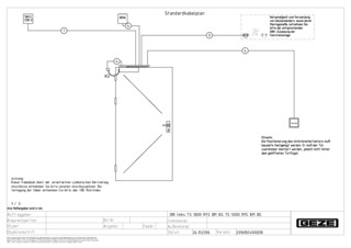
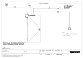
TS 5000 RFS Komplettverpackung * Gleitschienentürschließer EN 3-6 mit elektrischer Freilauffunktion und Rauchschalterzentrale
- Stufenlos von vorn einstellbare Schließkraft
- Optische Größenanzeige der Schließkraft sorgt für die richtige Einstellung
- Schließgeschwindigkeit über Ventil von vorn einstellbar
- Endschlag über Ventil von vorn einstellbar
- Elektrische Freilauffunktion
- Türschließer für rechts und links angeschlagene Türen verwendbar
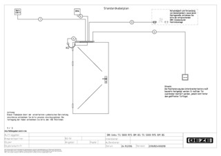
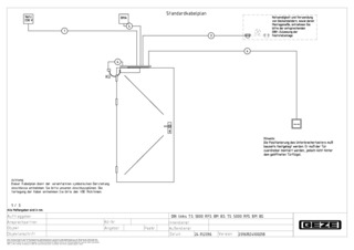
- Netzteil für 230 V Versorgungsspannung
- Rauchschalter mit Alarmschwellennachführung, Verschmutzungsanzeige und nicht sichtbaren Auslösetaster zum Testen
- Zusätzliche Rauchschalter anschließbar
- Höhenausgleich von +/- 2 mm möglich
Anwendungsbereiche
- Feuer- und Rauchschutztüren
- Rechte und linke Anschlagtüren
- Anschlagtüren bis 1400 mm Flügelbreite
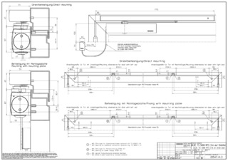
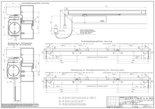
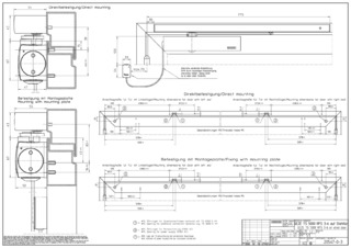
- Türblattmontage Bandseite
- Feststellanlagen mit integrierter Feststellung mit Freilauf
- Barrierefreie Zugänge nach DIN 18040
Technische Daten zum Produkt
| TS 5000 RFS Komplettverpackung | |
| Schließkraft nach EN 1154 | EN 3 - 6 |
| Flügelbreite (max.) | 1400 mm |
| Montageart | Türblattmontage Bandseite |
| Öffnungswinkel (max.) | 180 ° |
| Gleiche Ausführung DIN-L und DIN-R | Ja |
| Versorgungsspannung | 230 V AC |
| Eingangsspannung | 230 V AC |
| Frequenz Versorgungsspannung | 50/60 Hz |
| Einschaltdauer | 100 % |
| Schutzart | IP20 |
| Normkonformität | EN 1154:1996/A1:2002/AC:2006, EN 1155 |
| Zulassungen | Allgemeine bauaufsichtliche Zulassung des DIBt als Feststellanlage |
| Eignung Brandschutztüren | Ja |
| Montageplatte mit Bohrbild nach EN 1154 Beiblatt | Ja |
| Länge | 327 mm |
| Breite | 47 mm |
| Höhe | 60 mm |
| Freilaufbereich | 85 ° - 160 ° |
| Schließkraft einstellbar | Ja, stufenlos |
| Schließgeschwindigkeit einstellbar | Ja |
| Endschlag einstellbar | Ja, über Ventil |
| Öffnungsdämpfung integriert | Nein |
| Position Schließkraftverstellung | Vorn |
| Optische Schließkraftanzeige | Ja |
| Sicherheitsventil gegen Überlast | Ja |
| Thermostabilisierte Ventile | Ja |
| Feststellung | Elektrisch, für Freilauffunktion |
| Rauchschalter integriert | Ja |
| Verschmutzungsanzeige | Ja |
| Alarmschwellennachführung | Ja |
| Netzteil integriert | Ja |
| Flexible Öffnungsbegrenzung | Ja |
Downloads
KENNZEICHNUNGSPFLICHT: © GEZE GmbH
KENNZEICHNUNGSPFLICHT: © GEZE GmbH
Varianten & Zubehör
* Hinweis zu den gezeigten Produkten
Die aufgeführten Produkte können in der Form, Art, Eigenschaft und Funktion (Design, Maße, Verfügbarkeit, Zulassungen, Normen usw.) länderspezifisch abweichen. Kontaktieren Sie hierzu bitte Ihren GEZE Ansprechpartner oder senden Sie uns gerne eine E-Mail .