Levolan 60 Glas Deckenbefestigung versenkt * Schiebebeschlag für 60 kg schwere Glasflügel und versenkte Deckenbefestigung
- Design-Schiebebeschlag für Glastüren mit ESG 8 bis 12 mm sowie VSG bis 10,76 mm und bis 60 kg Flügelgewicht
- Schlankes Design mit integrierter Beschlagtechnik
- Komplett im Laufprofil integriert
- Mit dem Levolan Smart fix Montagesystem wird der Einsatz von Montagewerkzeug auf ein Minimum reduziert - für einen schnellen und bequemen Einbau
- Endmontage des Beschlags durch einfaches Clipsen
- Mit ein- oder beidseitiger Dämpfung für Türen bis zu 60 kg Flügelgewicht, sodass die Tür sanft abgebremst und selbstständig in die Endlage gezogen wird
- Nach DIN EN 1527 in 100.000 Prüfzyklen auf Langlebigkeit geprüft
- Abdeckprofile für den Deckeneinbau ermöglichen eleganten Abschluss zwischen Deckenöffung und Beschlag
Anwendungsbereiche
- Für designorientierte Schiebetüren im Innenbereich von Wohn- und Büroräumen
- Für alle ein- und mehrflügeligen Schiebetüren
- Befestigung an der Decke im versenkten Einbau
- Für die Befestigung an Wand und Decke (direkt und verdeckt liegend) sowie Glasbefestigung
- Mit Levolan 60 SoftStop ein- oder beidseitig gedämpft
- Durch die Laufruhe mit Levolan 60 SoftStop insbesondere für Türen im Wohn- und Bürobereich geeignet
Technische Daten zum Produkt
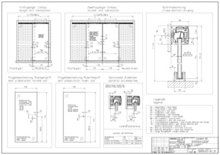
| Levolan 60 Glas Deckenbefestigung versenkt | |
| Flügelmaterial | Glas |
| Flügelgewicht (max.) | 60 kg |
| Flügelanzahl | 1-flügelig, 2-flügelig |
| Flügelhöhe (max.) | 3500 mm |
| Flügelstärke ab | 8 mm |
| Flügelstärke bis | 12 mm |
| Geometrie Laufschienenprofil | gerade |
| Montageart | Decke versenkt |
| Einzugsdämpfung | optional |
Downloads
KENNZEICHNUNGSPFLICHT: © GEZE GmbH
KENNZEICHNUNGSPFLICHT: © Studio BE / GEZE GmbH
Varianten & Zubehör
* Hinweis zu den gezeigten Produkten
Die aufgeführten Produkte können in der Form, Art, Eigenschaft und Funktion (Design, Maße, Verfügbarkeit, Zulassungen, Normen usw.) länderspezifisch abweichen. Kontaktieren Sie hierzu bitte Ihren GEZE Ansprechpartner oder senden Sie uns gerne eine E-Mail .