Slimdrive EMD Invers 1-leaf swing door drive system * Electromechanical swing door system for single leaf SHEV air inlet systems
- Opening and closing speed can be individually adjusted
- Electrical latching action which accelerates the door shortly before the closed position
- Electrical closing sequence control holds the active leaf in the waiting position until the passive leaf is closed
- Inverse function opens the door via spring force and closes it with a motorised function
- Vestibule function controls the opening and closing of two consecutive doors (interlocking door system)
- Obstacle detection detects an object through contact and stops the opening or closing process
- Automatic reversing detects an obstacle and returns to the opening position
- Push & Go function triggers the automatic drive following light manual pressure on the door leaf
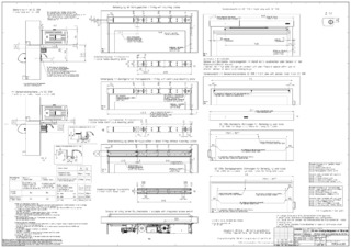
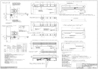
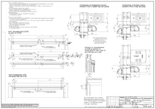
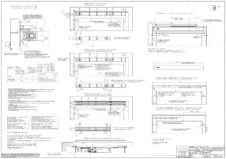
- Drive can be used with roller guide rail or link arm
Application Areas
- Doors along escape and rescue routes
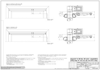
- Single and double leaf right and left single-action doors
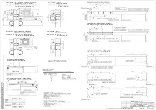
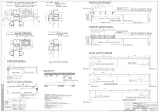
- Single-action doors up to 2800 mm hinge clearance, 1400 mm leaf width and 230 kg weight
- SHEV air inlet systems
- Interior and exterior doors with high access frequency
- Door leaf installation and transom installation
Configuration Variants
- Slimdrive EMD Invers
Technical data
| Slimdrive EMD Invers 1-leaf swing door drive system | |
| Height | 70 mm |
| Depth | 121 mm |
| Leaf weight (max.) 1-leaf | 230 kg |
| Distance centre door hinge-drive axis (min.-max.) 2-leaf | 1500 mm - 2800 mm |
| Leaf width (min.-max.) | 750 mm - 1400 mm |
| Reveal depth (max.) | 400 mm |
| Door overlap (max.) | 30 mm |
| Drive type | Electromechanical |
| Opening angle (max.) | 130 ° |
| DIN left | Yes |
| DIN right | Yes |
| Transom installation opposite hinge side with link arm | Yes |
| Transom installation opposite hinge side with roller guide rail | Yes |
| Transom installation hinge side with roller guide rail | Yes |
| Door leaf installation hinge side with roller guide rail | Yes |
| Electrical latching action | Yes |
| Electrical closing sequence control | Yes |
| Disconnection from mains | Main switch in the drive |
| Activation delay (max.) | 20 s |
| Operating voltage | 230 V |
| Power rating | 230 W |
| Power supply for external consumers (24 V DC) | 1000 mA |
| Service temperature | -15 - 50 °C |
| IP rating | IP20 |
| Mode of operation | Off, Automatic, Permanently open, Shop closing, Night |
| Type of function | Fully automatic |
| Automatic function | Yes |
| Low-energy function | Yes |
| Key function | Yes |
| Inverse function (opening by spring force) | Yes |
| Vestibule function | Yes |
| Obstacle detection | Yes |
| Automatic reversing | Yes |
| Push & Go | adjustable |
| Operation | Programme switch DPS, Programme switch integrated in the drive |
| Parameter setting | GEZEconnects (PC + Bluetooth), Service terminal ST 220, Programme switch DPS |
| Standard conformity | DIN 18650, EN 16005 |
Downloads
Variants & Accessories
* Notice about the products displayed
The products mentioned above may vary in form, type, characteristics and function (design, dimensions, availability, approvals, standards etc.) depending on the country. For questions please contact your GEZE contact person or send us an E-Mail .