OL 90 N

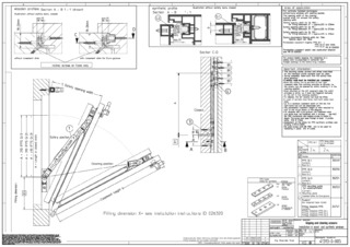
Gripping and cleaning scissors (FPS) * For fanlight openers for additional protection of bottom-hung leaves

Gripping and cleaning scissor stay For fanlight openers for additional protection of bottom-hung leaves
  • Restricts motion of the leaf following unhinging of the scissor (gripping position)
  • High safety due to multiple gripping positions
  • Leaf and frame elements can be separated for improved transport and installation
  • Two gripping and cleaning scissors are needed per window leaf
  • Available in three sizes
Contact us

Application Areas

  • Can be used for OL 90 N, OL 95 and OL 320
  • Vertically installed bottom-hung rectangular windows

Variants & Accessories

Contact

GEZE Central +41 62 285 54 00 German Switzerland GEZE Central +41 21 561 25 00 French Switzerland Hotline +41 800 155 477 German Switzerland Hotline +41 800 155 470 French Switzerland