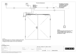
Freilauftürschließer 2-flügelig

TS 5000 E-ISM/S mit Freilauffunktion * Gleitschienentürschließersystem für zweiflügelige Türen mit integrierter Schließfolgeregelung, Freilauffunktion am Gangflügel und elektrischer Feststellung am Standflügel

Gleitschienentürschließersystem TS 5000 ISM Türschließer für zweiflügelige Türen mit Schließfolgeregelung und mit integrierter Öffnungsdämpfung,was bewirkt, dass die stark aufgeworfene Türen abgebremst wird.
  • System aus TS 5000 E Hy 3-6 und TS 5000 und E-ISM/S Gleitschiene mit Feststellung am Standflügel
  • Standflügel mit TS 5000 mit Schließkraft EN 2-6 oder TS 5000 ECline mit Schließkraft EN 3-5
  • Gangflügel mit TS 5000 E Hy (24 V) und einstellbarer Schließkraft EN 3-6
  • Für rechts und links angeschlagene Türen ohne Umstellung verwendbar
  • Elektrische Feststellung in der Gleitschiene des Standflügels, Feststellbereich 80°-130°
  • Schließfolgeregelung hält den Gangflügel in Warteposition bis der Standflügel geschlossen ist
Mehr anzeigen
  • Komfortrastfunktion am Gangflügel zur Arretierung der Tür im maximalen Öffnungswinkel
  • Hydraulischer Endschlag, der die Tür kurz vor Geschlossenlage beschleunigt
  • Schließgeschwindigkeit kann individuell angepasst werden
  • Integrierte Öffnungsdämpfung, bremst stark aufgeworfene Türen ab
  • Optische Schließkraftanzeige zum leichten Kontrollieren der Einstellung
  • Alle Funktionen von vorn einstellbar
  • Abfrage der Offenhaltung des Türflügels über potenzialfreien Kontakt der elektrischen Feststellung
Kontaktieren Sie uns

Anwendungsbereiche

  • Feuer- und Rauchschutztüren
  • Zweiflügelige rechte und linke Anschlagtüren
  • Anschlagtüren bis 2800 mm Bandabstand und 1400 mm Flügelbreite
  • Symmetrische und asymmetrische Türteilung möglich
  • Türblattmontage Bandseite
  • Feststellanlagen mit integrierter Feststellung am Standflügel

Technische Daten zum Produkt

TS 5000 E-ISM/S mit Freilauffunktion
Barrierefrei nach DIN 18040 bis Flügelbreite (max.) in mm 1400 mm
Flügelbreite (max.) 1400 mm
Montageart Türblattmontage Bandseite
Öffnungswinkel (max.) 180 °
Eingangsspannung 24 V DC
Minimaler Bandabstand 1300 mm
Minimale Standflügelbreite 400 mm
Eignung Brandschutztüren Ja
Freilaufbereich 85 ° - 160 °
Schließkraft einstellbar Ja, stufenlos
Schließgeschwindigkeit einstellbar Ja
Endschlag einstellbar Ja, über Ventil
Öffnungsdämpfung integriert Ja, hydraulisch einstellbar
Position Schließkraftverstellung Vorn
Optische Schließkraftanzeige Ja
Feststellung Elektrisch
Feststellung am Gangflügel / Standflügel Ja / Ja
Feststellbereich 80 ° - 130 °
Schließfolgeregelung integriert Ja

Downloads

Varianten & Zubehör

Kontakt

GEZE Zentrale +41 62 285 54 00 Deutsche Schweiz GEZE Zentrale +41 21 561 25 00 Suisse Romande Hotline +41 800 155 477 Deutsche Schweiz Hotline +41 800 155 470 Suisse Romande