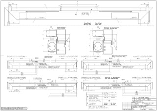
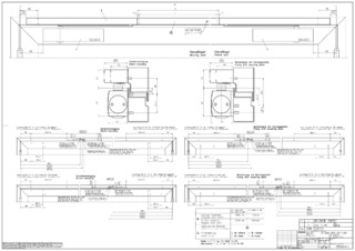
Gleitschiene 2-flügelig

TS 5000 E-ISM * Gleitschienentürschließersystem für zweiflügelige Türen mit Schließfolgeregelung und elektrischer Feststellung

Türschließer TS 5000 L-ISM Obentürschließersystem für 2-flügelige Türen mit integrierter mechanischer Schließfolgeregelung, Standardmontage auf Türblatt/Bandgegenseite
  • System aus zwei Türschließern TS 5000 und E-ISM Gleitschiene
  • Stufenlos einstellbare Schließkraft von EN 2-6
  • Betriebsspannung 24 V DC
  • Für rechts und links angeschlagene Türen ohne Umstellung verwendbar
  • Elektrische Feststellung in der Gleitschiene mit Feststellbereich 80°-130°
  • Schließfolgeregelung hält den Gangflügel in Warteposition bis der Standflügel geschlossen ist
Mehr anzeigen
  • Hydraulischer Endschlag, der die Tür kurz vor Geschlossenlage beschleunigt
  • Schließgeschwindigkeit kann individuell angepasst werden
  • Integrierte Öffnungsdämpfung, bremst stark aufgeworfene Türen ab
  • Optische Schließkraftanzeige zum leichten Kontrollieren der Einstellung
  • Alle Funktionen von vorn einstellbar
  • Abfrage der Offenhaltung des Türflügels über potenzialfreien Kontakt der elektrischen Feststellung
Kontaktieren Sie uns

Anwendungsbereiche

  • Feuer- und Rauchschutztüren
  • Zweiflügelige Anschlagtüren
  • Symmetrische und asymmetrische Türteilung möglich
  • Anschlagtüren bis 2800 mm Bandabstand und 1400 mm Flügelbreite, Überlänge bis 3200 mm
  • Türblattmontage Bandseite
  • Feststellanlagen mit integrierter Feststellung

Technische Daten zum Produkt

TS 5000 E-ISM
Barrierefrei nach DIN 18040 bis Flügelbreite (max.) in mm 1400 mm
Flügelbreite (max.) 1400 mm
Montageart Türblattmontage Bandseite
Öffnungswinkel (max.) 180 °
Eingangsspannung 24 V DC
Frequenz Versorgungsspannung 50 Hz
Minimaler Bandabstand 1300 mm
Minimale Standflügelbreite 400 mm
Eignung Brandschutztüren Ja
Schließkraft einstellbar Ja, stufenlos
Schließgeschwindigkeit einstellbar Ja
Endschlag einstellbar Ja, über Ventil
Öffnungsdämpfung integriert Ja, hydraulisch einstellbar
Position Schließkraftverstellung Vorn
Optische Schließkraftanzeige Ja
Feststellung Elektrisch
Feststellung am Gangflügel / Standflügel Ja / Ja
Feststellbereich 80 ° - 130 °
Schließfolgeregelung integriert Ja

Downloads

Varianten & Zubehör

Kontakt

GEZE Zentrale +41 62 285 54 00 Deutsche Schweiz GEZE Zentrale +41 21 561 25 00 Suisse Romande Hotline +41 800 155 477 Deutsche Schweiz Hotline +41 800 155 470 Suisse Romande