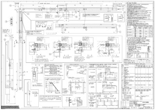
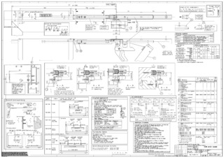
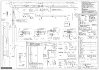
Schere OL 90 N

Standard Flügelbock für OL 90 N / OL 95 * Standard Flügelbock passend für OL 90 N und OL 95 Schere

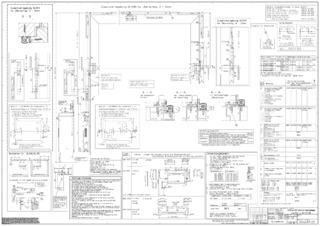
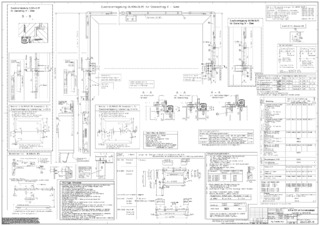
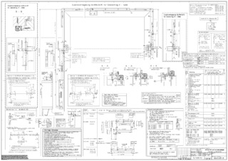
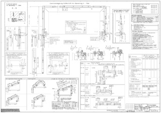
Gleitender Flügelbock für Sonderfensterform OL 90 N/ OL 95 Zubehör, Übertragung mit gekröpfter Stange und Sondervarianten
  • Komplett vormontierte Baugruppe erleichtert die Montage
  • Für die feste Verbindung der OL 90 N und OL 95 Schere am Rechteckfenster
Kontaktieren Sie uns

Anwendungsbereiche

  • Für Rechteckfenster
  • Montage an Holz-, Kunststoff- oder Metallfenstern
  • Flügelmontage

Downloads

Varianten & Zubehör

Kontakt

GEZE Zentrale +41 62 285 54 00 Deutsche Schweiz GEZE Zentrale +41 21 561 25 00 Suisse Romande Hotline +41 800 155 477 Deutsche Schweiz Hotline +41 800 155 470 Suisse Romande