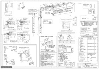
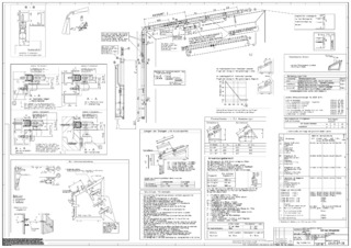
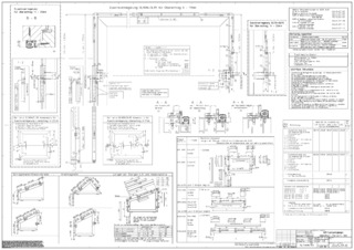
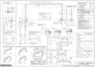
Biegbare Eckumlenkung für OL 90 N / OL 95 * Eckumlenkung für OL 90 N / OL 95 zur Übertragung der Bewegung über die Fensterecke
- Überträgt die Bewegung des Bedienelements über die Ecke zur Schere
Anwendungsbereiche
- Sonderformen wie Schräg- und Dreieckfenster möglich
- Montage an Holz-, Kunststoff- oder Metallfenstern
- Rahmenmontage
Varianten & Zubehör
* Hinweis zu den gezeigten Produkten
Die aufgeführten Produkte können in der Form, Art, Eigenschaft und Funktion (Design, Maße, Verfügbarkeit, Zulassungen, Normen usw.) länderspezifisch abweichen. Kontaktieren Sie hierzu bitte Ihren GEZE Ansprechpartner oder senden Sie uns gerne eine E-Mail .