ECdrive T2-FR * Automatisches Linear-Schiebetürsystem in Flucht- und Rettungswegen für Türen bis 140 kg Flügelgewicht
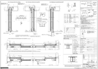
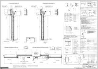
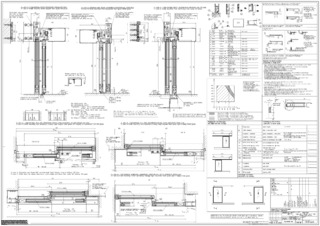
- Schlankes Design mit nur 100 mm Haubenhöhe für mehr gestalterischen Freiraum
- Mit Doppelrollenwagen und GCprofile Therm bis 140 kg Flügelgewicht zulässig
- Effiziente Montage durch vorgebohrte Laufschiene und Langlöcher
- Durchgehende Bodenführung zur kontrollierten Ableitung von Regenwasser erhältlich
- Integrierte Kabelführungen erleichtern das Verlegen der Kabel
- Vernetzbar und mittels offenem Standard (BACnet) in die Gebäudeautomation integrierbar
- Eigenständige Fehlererkennung und Protokollierung
- Frei parametrierbare Ein- und Ausgänge für unterschiedliche Funktionen
- Integrierter Akku für Notöffnung bei Stromausfall
- Selbstreinigender Rollenwagen reduziert den Wartungsaufwand
- Verschiedene mechanische und elektrische Verriegelungen sind optional verfügbar
- Service Schnittstelle für einfache Wartung
Der neue ECdrive T2-FR sorgt mit seinem schlanken Design für neue Gestaltungsmöglichkeiten und das zu einem hervorragenden Preis-Leistungsverhältnis. In Verbindung mit dem Profilsystem GCprofile Therm wird die Energieeffizienz zusätzlich verbessert.
Anwendungsbereiche
- Ein- und zweiflügelige Schiebetürsysteme in Flucht- und Rettungswegen
- Innen- und Außentüren mit hoher Begehfrequenz
- Komplettlösung für Eingangsbereiche mit GCprofile Therm und Oberlicht
- Bei erhöhten Anforderungen an die Dichtheit oder Energieeffizienz
- Öffnungsweiten von 700 bis 3000 mm möglich
- Türflügelgewichte bis 140 kg je Flügel
- Geeignete Profilsysteme sind feingerahmtes Profilsystem mit Isolier- und Mono-Glas, GCprofile Therm, ESG-Klemmprofil, bauseitige Rahmen- und Holzflügel
Einbausituationen in Referenzobjekten und Videos
Technische Daten zum Produkt
| ECdrive T2-FR | |
| Für 1-flügelige Türsysteme | Ja |
| Für 2-flügelige Türsysteme | Ja |
| Isolierglas feingerahmt | Ja |
| MONO-Glas feingerahmt | Ja |
| ESG-Klemmprofil | Ja |
| Rahmenflügel (bauseitig) | Ja |
| Höhe | 100 mm |
| Tiefe | 190 mm |
| Flügelgewicht (max.) 1-flügelig | 120 kg |
| Flügelgewicht (max.) 1-flügelig mit GCprofile Therm und Doppelrollenwagen | 140 kg |
| Flügelgewicht (max.) 2-flügelig | 120 kg |
| Flügelgewicht (max.) 2-flügelig mit GCprofile Therm und Doppelrollenwagen | 140 kg |
| Öffnungsweite 1-flügelig | 700 mm - 3000 mm |
| Öffnungsweite 1-flügelig mit GCprofile Therm | 1500 mm |
| Öffnungsweite 2-flügelig | 900 mm - 3000 mm |
| Öffnungsweite 2-flügelig mit GCprofile Therm | 3000 mm |
| Betriebstemperatur | -15 - 50 °C |
| Schutzart | IP20 |
| Netztrennung | Hauptschalter im Antrieb |
| Normkonformität | AutSchR, DIN 18650, DIN EN ISO 13849: Performance Level D, EN 16005 |
Downloads
Varianten & Zubehör
* Hinweis zu den gezeigten Produkten
Die aufgeführten Produkte können in der Form, Art, Eigenschaft und Funktion (Design, Maße, Verfügbarkeit, Zulassungen, Normen usw.) länderspezifisch abweichen. Kontaktieren Sie hierzu bitte Ihren GEZE Ansprechpartner oder senden Sie uns gerne eine E-Mail .