Slimdrive SL NT-FR * Automatisches Linear-Schiebetürsystem für Flucht- und Rettungswege mit geringer Bauhöhe und klarer Designlinie
- Fluchtwegfunktion mit redundanter Antriebsausführung
- Sehr laufruhiger verschleißarmer Gleichstrom-Antrieb mit nur 7 cm Höhe
- Vernetzbar und mittels offenem Standard (BACnet) in die Gebäudeautomation integrierbar
- Eigenständige Fehlererkennung und Protokollierung
- Frei parametrierbare Ein- und Ausgänge für unterschiedliche Funktionen
- Integrierter Akku für Notöffnung bei sicherheitsrelevanten Fehlern wie z.B. Stromausfall
- Selbstreinigender Rollenwagen reduziert den Wartungsaufwand
- Verschiedene mechanische und elektrische Verriegelungen sind optional verfügbar
Anwendungsbereiche
- Ein- und zweiflügelige Schiebetürsysteme in Flucht- und Rettungswegen
- Innen- und Außentüren mit hoher Begehfrequenz
- Fassaden mit schmalen Pfosten-Riegel-Konstruktionen
- Glasfassaden mit höchsten Designansprüchen
- Öffnungsweiten von 700 bis 3000 mm möglich
- Türflügelgewichte bis 125 kg je Flügel
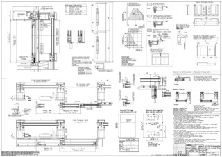
- Geeignete Profilsysteme sind feingerahmtes Profilsystem mit ISO- und Mono-Glas, Ganzglassystem (GGS) und bauseitige Rahmen- und Holzflügel
Einbausituationen in Referenzobjekten und Videos
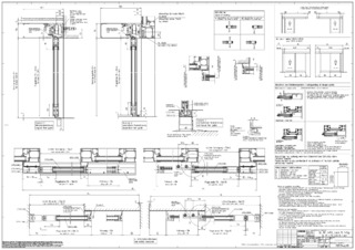
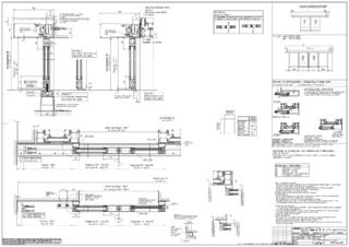
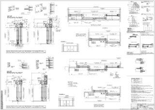
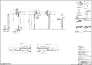
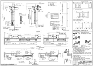
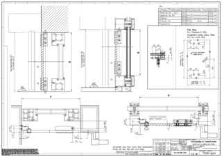
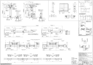
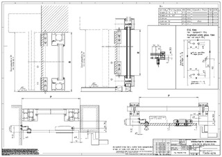
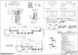
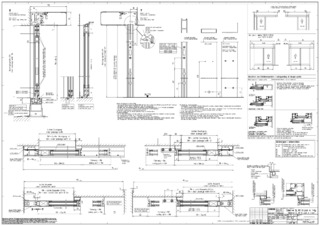
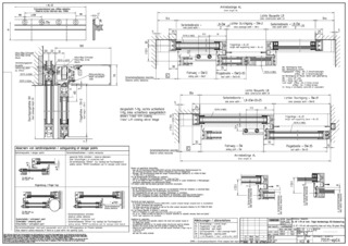
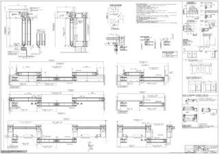
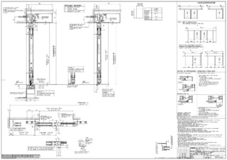
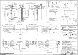
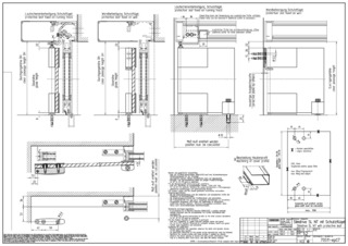
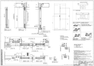
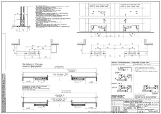
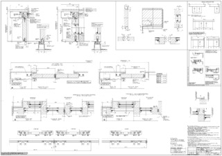
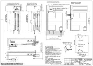
Technische Daten zum Produkt
| Slimdrive SL NT-FR | |
| Für 1-flügelige Türsysteme | Ja |
| Für 2-flügelige Türsysteme | Ja |
| Isolierglas feingerahmt | Ja |
| MONO-Glas feingerahmt | Ja |
| Ganzglassystem (GGS) | Ja |
| Holzflügel (bauseits) | Ja |
| Höhe | 70 mm |
| Tiefe | 190 mm |
| Flügelgewicht (max.) 1-flügelig | 125 kg |
| Flügelgewicht (max.) 2-flügelig | 125 kg |
| Öffnungsweite 1-flügelig | 700 mm - 3000 mm |
| Öffnungsweite 2-flügelig | 900 mm - 3000 mm |
| Betriebstemperatur | -15 - 50 °C |
| Schutzart | IP20 |
| Netztrennung | Hauptschalter im Antrieb |
| Normkonformität | AutSchR, DIN 18650, DIN EN ISO 13849: Performance Level D, EN 16005 |
Downloads
Varianten & Zubehör
* Hinweis zu den gezeigten Produkten
Die aufgeführten Produkte können in der Form, Art, Eigenschaft und Funktion (Design, Maße, Verfügbarkeit, Zulassungen, Normen usw.) länderspezifisch abweichen. Kontaktieren Sie hierzu bitte Ihren GEZE Ansprechpartner oder senden Sie uns gerne eine E-Mail .