TS 5000 RFS 3-6

Pack complet TS 5000 RFS * Ferme-porte en applique avec bras à coulisse EN 3-6 à fonction débrayable électrique et centrale de détection incendie

Ferme-portes TS 5000 RFS 3-6 Ferme-porte en applique avec bras à coulisse pour portes à 1 vantail avec fonction débrayable électrique et centrale de détection incendie avec centrale de détection incendie intégrée, dont le signal ferme automatiquement la porte en cas dʼincendie.
  • Force de fermeture réglable à réglage variable en continu par l'avant
  • L’affichage visuel de la force de fermeture assure un réglage correct
  • Vitesse de fermeture réglable par l’avant via une vanne
  • À-coup final réglable par l’avant via une valve
  • Fonction débrayable électrique
  • Ferme-porte adapté pour portes DIN droite / DIN gauche
Afficher plus
  • Bloc d'alimentation pour tension d'alimentation 230 V
  • Détecteur de fumée avec ajustement automatique du seuil d'alerte, affichage du taux d’encrassement et bouton de déclenchement invisible pour tester
  • Possibilité de raccordement d'un interrupteur de fumée supplémentaire
  • Compensation de la hauteur de +/- 2 mm possible
Contactez-nous

Domaines d’application

  • Portes coupe-feu et pare-flammes
  • Portes à simple action à droite et à gauche
  • Portes battantes à simple action pour une largeur de vantail jusqu'à 1400 mm
  • Montage sur ouvrant de porte côté paumelles
  • Unités d'arrêt à fonction maintien porte ouverte intégrée avec fonction débrayable
  • Accessibilité sans obstacle selon DIN 18040

Spécifications du produit

Pack complet TS 5000 RFS
Force de fermeture selon EN 1154 EN 3 - 6
Largeur de vantail (max.) 1400 mm
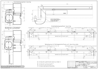
Type de montage Montage sur ouvrant de porte côté paumelles
Angle d'ouverture (max.) 180 °
Réversible DIN gauche et DIN droite Oui
Tension d'alimentation 230 V AC
Tension d’entrée 230 V CA
Fréquence d'alimentation 50/60 Hz
Facteur d'utilisation 100 %
Indice de protection IP20
Conformité aux normes EN 1154:1996/A1:2002/AC:2006, EN 1155
Normes Système d‘arrêt avec homologation officielle du DIBt (Institut technique allemand de la construction)
Homologation pour portes coupe-feu Oui
Plaque de montage avec schéma de perçage selon EN 1154, annexe Oui
Longueur 327 mm
Largeur 47 mm
Hauteur 60 mm
Plage d'arrêt en fonction débrayée 85 ° - 160 °
Force de fermeture réglable Oui, à plage continue
Vitesse de fermeture réglable Oui
À-coup final réglable Oui, par valve
Freinage à l‘ouverture intégré Non
Position de réglage de la force de fermeture Avant
Affichage visuel de la force de fermeture Oui
Vanne de sécurité contre la surcharge Oui
Soupapes thermostabilisées Oui
Fonction maintien porte ouverte Électrique, pour la fonction débrayable
Détecteur de fumée intégré Oui
Affichage du taux d'encrassement Oui
Contact d'information du signal d'alarme Oui
Bloc d'alimentation intégré Oui
Limiteur d'ouverture flexible Oui

Téléchargements

Variantes et accessoires

Contact

GEZE Centrale +41 21 561 25 00 Suisse Romande GEZE Centrale +41 62 285 54 00 Suisse Alémanique Hotline +41 800 155 470 Suisse Romande Hotline +41 800 155 477 Suisse Alémanique