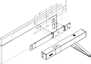
Bras à compas 1 vantail

TS 4000 R * ferme-porte en applique avec bras à compas avec unité d'arrêt électrique et détecteur de fumée

Ferme-portes TS 4000 R Ferme-porte en applique à fonction maintien porte ouverte électro-hydraulique selon EN 1155, force de fermeture 1-6, avec détecteur de fumée intégré
  • Force de fermeture réglable en continu EN 1-6
  • Tension de service 230 V AC
  • Pour portes ouvrant à droite et à gauche sans besoin de modification
  • Centrale de détection incendie intégrée dont le signal ferme automatiquement la porte en cas d’incendie
  • Détecteur de fumée avec affichage du taux d’encrassement et ajustement automatique du seuil d'alerte
  • Possibilité de raccordement d'un détecteur de fumée supplémentaire
Afficher plus
  • Unité d'arrêt électrique selon la norme EN 1155 adapté aux unités d'arrêt
  • Unité d'arrêt électrique avec plage d’arrêt 80°-175
  • À-coup final mécanique, qui accélère la porte juste avant la position de fermeture
  • La vitesse de fermeture peut être ajustée individuellement
  • Affichage visuel de la force de fermeture pour contrôler facilement le réglage
  • Toutes les fonctions réglables par l’avant (hors à-coup final)
Contactez-nous

Domaines d’application

  • Portes coupe-feu et pare-flammes
  • Portes à simple action à droite et à gauche
  • Portes battantes à simple action pour une largeur de vantail jusqu'à 1400 mm
  • Montage sur dormant côté opposé aux paumelles
  • Unités d'arrêt à fonction maintien porte ouverte intégrée

Spécifications du produit

TS 4000 R
Force de fermeture selon EN 1154 EN 1 - 6
Accessibilité selon DIN 18040 jusqu'à une largeur de vantail (max.) en mm 1400 mm
Largeur de vantail (max.) 1400 mm
Type de montage Montage sur dormant côté opposé aux paumelles
Angle d'ouverture (max.) 180 °
Tension d’entrée 230 V CA
Homologation pour portes coupe-feu Oui
Force de fermeture réglable Oui, à plage continue
Vitesse de fermeture réglable Oui
À-coup final réglable Oui, par le bras à compas
Position de réglage de la force de fermeture Avant
Affichage visuel de la force de fermeture Oui
Fonction maintien porte ouverte Électrique
Plage de réglage de l’arrêt 80 ° - 175 °
Détecteur de fumée intégré Oui

Téléchargements

Variantes et accessoires

Contact

GEZE Centrale +41 21 561 25 00 Suisse Romande GEZE Centrale +41 62 285 54 00 Suisse Alémanique Hotline +41 800 155 470 Suisse Romande Hotline +41 800 155 477 Suisse Alémanique