TSA 325 NT * Automatisches Karusselltürsystem für drei- oder vierflügelige Türen mit großem Anwendungsbereich
- Sehr laufruhige verschleißarme Antriebslösung mit mind. 200 mm Kranzhöhe
- Präziser Abschluss der Türflügel mit den Seitenwänden
- Hoher Isolationseffekt gegen Zugluft, Witterungseinflüsse und Lärm
- Einstellbare Automatikgeschwindigkeit passend zum Durchgangsverkehr
- Servo-Funktion zur motorischen Unterstützung bei manueller Öffnung der Tür
- Manuelle Bedienung der Tür möglich, um z.B. Reinigungsarbeiten durchzuführen
- Vernetzbar und mittels offenem Standard (BACnet) in die Gebäudeautomation integrierbar
- Eigenständige Fehlererkennung und Protokollierung
- Frei parametrierbare Ein- und Ausgänge für unterschiedliche Funktionen
- Integrierter Akku für Notöffnung bei sicherheitsrelevanten Fehlern wie z.B. Stromausfall
Anwendungsbereiche
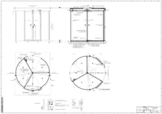
- Drei- und vierflügelige Türsysteme
- Innen- und Außentüren mit hoher Begehfrequenz
- Repräsentative Gebäudeeingänge mit großem Lichteinfall
- Fassaden mit schmalen Pfosten-Riegel-Konstruktionen
- Glasfassaden mit höchsten Designansprüchen
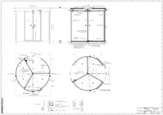
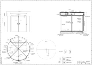
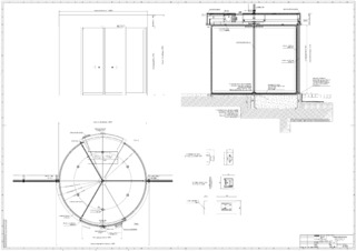
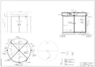
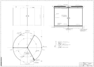
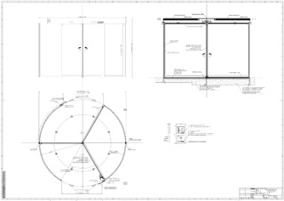
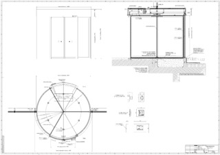
- Innendurchmesser von 1800 bis 3600 mm möglich
- Geeignete Profilsysteme sind feingerahmtes Profilsystem mit ISO- und Mono-Glas
Einbausituationen in Referenzobjekten und Videos
Technische Daten zum Produkt
| TSA 325 NT | |
| Bedienung manuell | Ja |
| Mit Drehzahlbegrenzer (optional) | Ja |
| Mit Positionierautomatik (optional) | Ja |
| Bedienung vollautomatisch | Ja |
| Funktion Servo | Ja |
| Eignung für Flucht- und Rettungswege | Nein |
| Funktion Break-out (BO) | Nein |
| Innendurchmesser (min.) | 1800 mm |
| Innendurchmesser (max.) | 3600 mm |
| Für 3-flügelige Türsysteme | Ja |
| Für 4-flügelige Türsysteme | Ja |
| Lichte Durchgangshöhe | 3000 mm |
| Kranzhöhe (min.) | 200 mm |
| Ausführung Seitenteile | 10 mm VSG, 22 mm Paneelfüllung, 34 mm glattflächiges Paneel, Sondergläser auf Anfrage |
| Ausführung Dachkonstruktion | Staubdach mit Holzabdeckung, optische Blechabdeckung, wasserdichtes Dach mit Speier |
| Beleuchtung | bei Variante mit Dach |
| Bodenbelag | Reinstreifmatte, Reinstreifmatte nach Kundenwunsch |
| Luftschleieranlage | Elektroluftschleier, Warmwasserluftschleier, abhängig von der Deckenkonstruktion möglich |
| Nachtverschluss Anordnung | Innen, Außen |
| Nachtverschluss Typ | Manuell, Automatisch |
| Nachtverschluss Bauart | 10 mm VSG, 22 mm ISO-Glas, 22 mm Paneelfüllung, Sondergläser auf Anfrage |
| Verriegelung | Manuell, Stange, elektromechanisch |
| Türgriffe horizontal oder vertikal | Ja |
| Bodenring | Ja |
| Unterflurantrieb | Ja |
| Taster Sonderfunktion für Menschen mit Behinderung | Ja |
| Normkonformität | DIN 18650, EN 16005 |
Downloads
KENNZEICHNUNGSPFLICHT: © Nicolas Tohme / GEZE GmbH
KENNZEICHNUNGSPFLICHT: © Lothar Wels / GEZE GmbH
KENNZEICHNUNGSPFLICHT: © GEZE GmbH
KENNZEICHNUNGSPFLICHT: © Fotografia Maciej Lulko / GEZE GmbH
KENNZEICHNUNGSPFLICHT: © Robert Les / GEZE GmbH
KENNZEICHNUNGSPFLICHT: © Tarık Kaan Muşlu / GEZE GmbH
KENNZEICHNUNGSPFLICHT: © Robert Les / GEZE GmbH
KENNZEICHNUNGSPFLICHT: © Lothar Wels / GEZE GmbH
KENNZEICHNUNGSPFLICHT: © Tarık Kaan Muşlu / GEZE GmbH
KENNZEICHNUNGSPFLICHT: © Morten Bak / GEZE GmbH
KENNZEICHNUNGSPFLICHT: © Nikolaus Grünwald / GEZE GmbH
KENNZEICHNUNGSPFLICHT: © Truls Busch-Christensen / GEZE GmbH
KENNZEICHNUNGSPFLICHT: © Laurent Pardon / GEZE GmbH
KENNZEICHNUNGSPFLICHT: © Nikolaus Grünwald / GEZE GmbH
KENNZEICHNUNGSPFLICHT: © Nikolaus Grünwald / GEZE GmbH
KENNZEICHNUNGSPFLICHT: © Nicolas Tohme / GEZE GmbH
KENNZEICHNUNGSPFLICHT: © Nicolas Tohme / GEZE GmbH
KENNZEICHNUNGSPFLICHT: © Nicolas Tohme / GEZE GmbH
KENNZEICHNUNGSPFLICHT: © Sigrid Rauchdobler / GEZE GmbH
Varianten & Zubehör
* Hinweis zu den gezeigten Produkten
Die aufgeführten Produkte können in der Form, Art, Eigenschaft und Funktion (Design, Maße, Verfügbarkeit, Zulassungen, Normen usw.) länderspezifisch abweichen. Kontaktieren Sie hierzu bitte Ihren GEZE Ansprechpartner oder senden Sie uns gerne eine E-Mail .